V N laan 42, Coevorden
€ 295.000 k.k.

Jouw makelaar voor deze woning
| 0524-525252 | |
| [email protected] | |
| +31 524-525252 |
Interesse in deze woning?
Over deze woning
Nieuw in de verkoop: VN Laan 42 te Coevorden.
Aan de rand van een groene zone, in een rustige en kindvriendelijke straat, staat deze royale twee-onder-een-kapwoning op 232 m² eigen grond. De woning, oorspronkelijk gebouwd in 1971 onder regie van de eerste bewoner, ademt degelijkheid en karakter. Het huis is keurig onderhouden en oa voorzien van rolluiken rondom, twee airco’s, een nieuwe kachel, markies en een op afstand bedienbare garagedeur. Binnen biedt de woning verrassend veel ruimte, met maar liefst vijf volwaardige slaapkamers. Deze indeling maakt het huis ideaal voor een groot gezin, voor wie vanuit huis werkt of graag een hobbyruimte tot zijn beschikking heeft.
De tuin aan de achterzijde is volledig afsluitbaar en biedt volop privacy. Aan de voorzijde geniet je van het uitzicht op het groen, terwijl sportvelden en wandelmogelijkheden zich binnen tien minuten bevinden. De oprit en de garage bieden voldoende parkeergelegenheid, ook voor bezoekers. De locatie combineert rust met gemak: een supermarkt, basisschool en sportvoorzieningen liggen op korte afstand, en het centrum van Coevorden met zijn gezellige winkels en voorzieningen is binnen enkele minuten bereikbaar per fiets of te voet.
Een woning die rust, ruimte en comfort samenbrengt, klaar om in 2026 een nieuw gezin te verwelkomen.
INDELING:
Onderverdieping; Kelderkast.
Begane grond: Hal/entree met toilet. Doorzon woonkamer voorzien van vloerbedekking en airconditioning. Dichte keuken met apparatuur: gastoestel met afzuiging, vaatwasser, koelkast en deur naar het terras. Verlengde garage met berging.
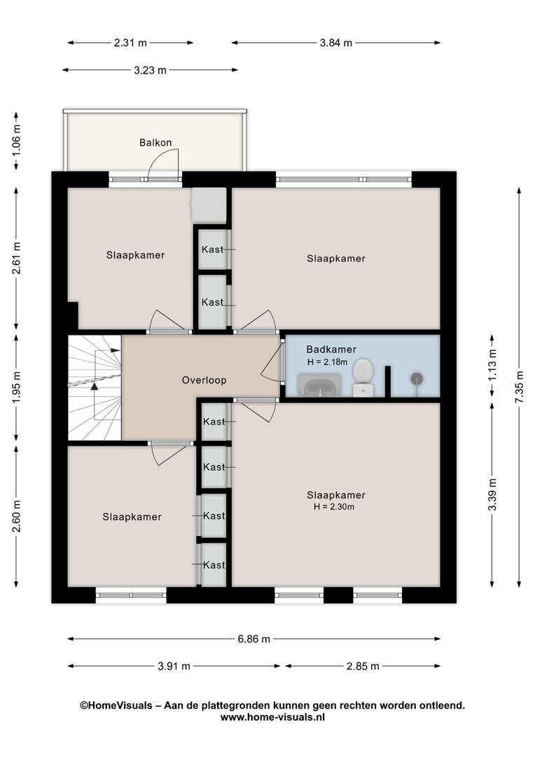
Eerste verdieping: Overloop met airconditioning. 4 Slaapkamers voorzien van vloerbedekking en allen met vaste kasten. Eén slaapkamer met balkon.
Badkamer met inloopdouche, toilet en wastafel met meubel. Via vaste trap naar...
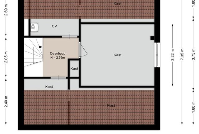
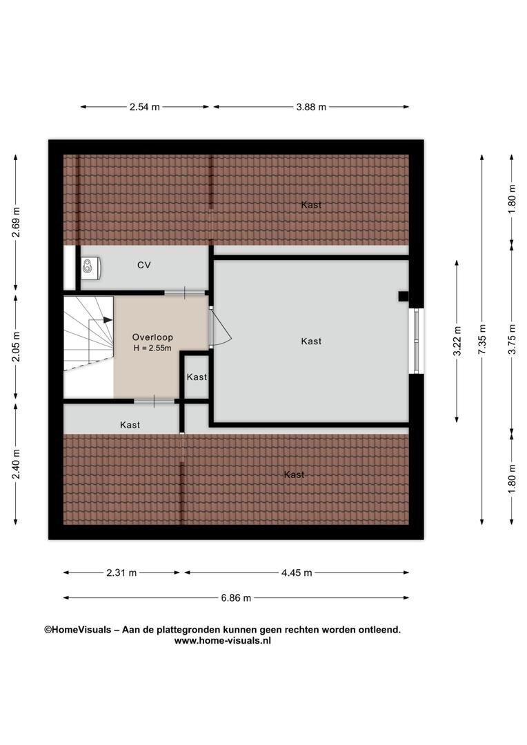
Tweede verdieping: cv-ketel, berging en 4e slaapkamer.
Extra informatie:
- verwarmen geschiedt middels radiatoren en airconditioning;
- woning heeft gedeeltelijk enkel, dubbel glas HR++ en HR +++ en gedeeltelijk dakisolatie;
- cv-ketel 2023;
- energielabel C;
- de nieuwe kozijn met voordeur is in 2025 geplaatst en heeft triple glas;
- rolluiken rondom de woning;
- 2 x airconditioning (beneden en op de eerste verdieping);
- nieuwe kachel;
- elektrisch bedienbare garagedeur.
Volledige omschrijving
Minder omschrijving
Aan de rand van een groene zone, in een rustige en kindvriendelijke straat, staat deze royale twee-onder-een-kapwoning op 232 m² eigen grond. De woning, oorspronkelijk gebouwd in 1971 onder regie van de eerste bewoner, ademt degelijkheid en karakter. Het huis is keurig onderhouden en oa voorzien van rolluiken rondom, twee airco’s, een nieuwe kachel, markies en een op afstand bedienbare garagedeur. Binnen biedt de woning verrassend veel ruimte, met maar liefst vijf volwaardige slaapkamers. Deze indeling maakt het huis ideaal voor een groot gezin, voor wie vanuit huis werkt of graag een hobbyruimte tot zijn beschikking heeft.
De tuin aan de achterzijde is volledig afsluitbaar en biedt volop privacy. Aan de voorzijde geniet je van het uitzicht op het groen, terwijl sportvelden en wandelmogelijkheden zich binnen tien minuten bevinden. De oprit en de garage bieden voldoende parkeergelegenheid, ook voor bezoekers. De locatie combineert rust met gemak: een supermarkt, basisschool en sportvoorzieningen liggen op korte afstand, en het centrum van Coevorden met zijn gezellige winkels en voorzieningen is binnen enkele minuten bereikbaar per fiets of te voet.
Een woning die rust, ruimte en comfort samenbrengt, klaar om in 2026 een nieuw gezin te verwelkomen.
INDELING:
Onderverdieping; Kelderkast.
Begane grond: Hal/entree met toilet. Doorzon woonkamer voorzien van vloerbedekking en airconditioning. Dichte keuken met apparatuur: gastoestel met afzuiging, vaatwasser, koelkast en deur naar het terras. Verlengde garage met berging.
Eerste verdieping: Overloop met airconditioning. 4 Slaapkamers voorzien van vloerbedekking en allen met vaste kasten. Eén slaapkamer met balkon.
Badkamer met inloopdouche, toilet en wastafel met meubel. Via vaste trap naar...
Tweede verdieping: cv-ketel, berging en 4e slaapkamer.
Extra informatie:
- verwarmen geschiedt middels radiatoren en airconditioning;
- woning heeft gedeeltelijk enkel, dubbel glas HR++ en HR +++ en gedeeltelijk dakisolatie;
- cv-ketel 2023;
- energielabel C;
- de nieuwe kozijn met voordeur is in 2025 geplaatst en heeft triple glas;
- rolluiken rondom de woning;
- 2 x airconditioning (beneden en op de eerste verdieping);
- nieuwe kachel;
- elektrisch bedienbare garagedeur.
Interesse?
Plan een bezichtiging voor V N laan 42.
Bel ons op 0524-525252 of WhatsApp via +31 524-525252 voor direct contact. Of laat jouw gegevens achter en wij nemen zo snel mogelijk contact met jou op.








