Burg Gautiersingel 3, Coevorden
€ 209.000 k.k.

Jouw makelaar voor deze woning
| 0524-525252 | |
| [email protected] | |
| +31 524-525252 |
Interesse in deze woning?
Over deze woning
Op een mooie locatie in het centrum van Coevorden, aan de Burg. Gautiersingel, ligt dit praktische en lichte appartement. Het appartement maakt deel uit van een verzorgd complex uit 1980 en bevindt zich op de eerste verdieping.
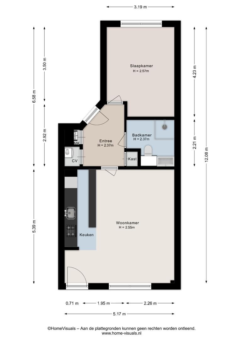
Met een woonoppervlakte van circa 54 m² is het appartement uitermate geschikt voor starters of alleenstaanden. De woonkamer beschikt over veel lichtinval en beschikt over een Frans balkon, wat zorgt voor extra sfeer en een open gevoel.
Op de begane grond is een eigen berging aanwezig, ideaal voor het stallen van fietsen of het opbergen van extra spullen.
De ligging is een groot pluspunt. Je woont hier midden in het gezellige centrum van Coevorden, met winkels, supermarkten, horeca en andere voorzieningen op loopafstand. Coevorden staat bekend om haar historische karakter, met onder andere het kasteel, de sfeervolle grachten en een levendig stadscentrum. Daarnaast zijn er goede verbindingen richting Emmen en omliggende plaatsen, zowel met de auto als het openbaar vervoer.
INDELING:
Begane grond: Berging.
Appartement gelegen op de 1e verdieping: Entree/hal met cv kast (2023). Woonkamer voorzien van eikenvloer en rolluik. Open keuken met inbouwapparatuur: vaatwasser, magnetron, koelkast, afzuigkap en 4-pits gaskookstel. Badkamer voorzien van toilet, wasmachineaansluiting, douche, wastafel en wastafelmeubel. Slaapkamer beschikt over een laminaat vloer en een kast.
Extra informatie:
- verwarmen geschiedt middels radiatoren;
- energielabel A;
- muurisolatie en kunststof kozijnen met dubbel glas;
- VVE kosten €1350 per jaar;
- berging op de begane grond.
Volledige omschrijving
Minder omschrijving
Met een woonoppervlakte van circa 54 m² is het appartement uitermate geschikt voor starters of alleenstaanden. De woonkamer beschikt over veel lichtinval en beschikt over een Frans balkon, wat zorgt voor extra sfeer en een open gevoel.
Op de begane grond is een eigen berging aanwezig, ideaal voor het stallen van fietsen of het opbergen van extra spullen.
De ligging is een groot pluspunt. Je woont hier midden in het gezellige centrum van Coevorden, met winkels, supermarkten, horeca en andere voorzieningen op loopafstand. Coevorden staat bekend om haar historische karakter, met onder andere het kasteel, de sfeervolle grachten en een levendig stadscentrum. Daarnaast zijn er goede verbindingen richting Emmen en omliggende plaatsen, zowel met de auto als het openbaar vervoer.
INDELING:
Begane grond: Berging.
Appartement gelegen op de 1e verdieping: Entree/hal met cv kast (2023). Woonkamer voorzien van eikenvloer en rolluik. Open keuken met inbouwapparatuur: vaatwasser, magnetron, koelkast, afzuigkap en 4-pits gaskookstel. Badkamer voorzien van toilet, wasmachineaansluiting, douche, wastafel en wastafelmeubel. Slaapkamer beschikt over een laminaat vloer en een kast.
Extra informatie:
- verwarmen geschiedt middels radiatoren;
- energielabel A;
- muurisolatie en kunststof kozijnen met dubbel glas;
- VVE kosten €1350 per jaar;
- berging op de begane grond.
Interesse?
Plan een bezichtiging voor Burg Gautiersingel 3.
Bel ons op 0524-525252 of WhatsApp via +31 524-525252 voor direct contact. Of laat jouw gegevens achter en wij nemen zo snel mogelijk contact met jou op.


