Bentheimerstraat 51, Coevorden
€ 495.000 k.k.

Jouw makelaar voor deze woning
| 0524-525252 | |
| [email protected] | |
| +31 524-525252 |
Heb je vragen?
Over deze woning
Luxe appartement met prachtig uitzicht op de grachten van Coevorden.
Wilt u wonen in een modern en comfortabel appartement op loopafstand van de sfeervolle vestingstad Coevorden? Dan is dit uw kans. Aan de zuidzijde van het centrum, in het fraaie appartementencomplex Poort 1, bieden wij dit luxe afgewerkte appartement aan. Samen met het naastgelegen Poort 2 vormt het complex letterlijk de toegangspoort tot de binnenstad, met alle voorzieningen zoals winkels, supermarkt, restaurants, apotheek en het treinstation, op loopafstand.
Dit stijlvolle appartement, gebouwd in 2021, is hoogwaardig afgewerkt en van alle gemakken voorzien. Het beschikt over twee slaapkamers, een ruim balkon met prachtig uitzicht over de historische grachten van Coevorden.
Dankzij de uitstekende isolatie, kunststof kozijnen, warmtepomp en zonnepanelen is dit appartement niet alleen comfortabel, maar ook bijzonder energiezuinig, met een energielabel A++++. Het gebouw heeft een lift en het appartement beschikt over een eigen parkeerplaats met berging in de parkeerkelder en een schuifpui naar het balkon, waardoor u optimaal kunt genieten van licht en ruimte.
Kortom: een instapklaar, duurzaam appartement op een toplocatie in Coevorden.
INDELING:
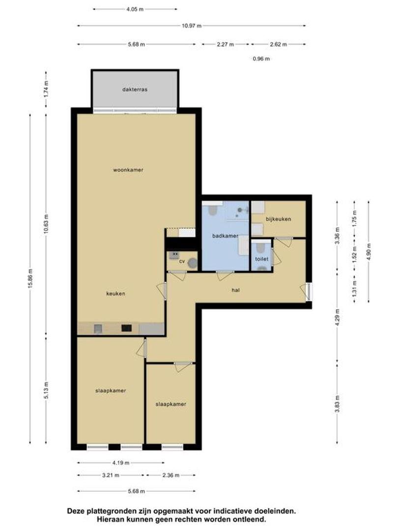
Hal/entree met meterkast en toilet, bijkeuken met wasmachine-aansluiting. Woonkamer voorzien van pvc-vloer, open keuken en toegang tot een royaal balkon. Badkamer met inloopdouche, toilet en wastafelmeubel. Twee slaapkamers.
Extra informatie:
- Woning wordt verwarmd middels vloerverwarming en warmtepomp;
- Een eigen parkeerplaats in parkeerkelder. Berging voor de fietsen op de begane grond;
- Middels een video-intercom systeem kan de deur van de centrale hal geopend worden vanuit het eigen appartement;
- Appartement is voorzien van een royaal balkon met uitzicht op de haven/grachten;
- Liftinstallatie aanwezig;
- Servicekosten VvE € 261,18 per maand
Volledige omschrijving
Minder omschrijving
Wilt u wonen in een modern en comfortabel appartement op loopafstand van de sfeervolle vestingstad Coevorden? Dan is dit uw kans. Aan de zuidzijde van het centrum, in het fraaie appartementencomplex Poort 1, bieden wij dit luxe afgewerkte appartement aan. Samen met het naastgelegen Poort 2 vormt het complex letterlijk de toegangspoort tot de binnenstad, met alle voorzieningen zoals winkels, supermarkt, restaurants, apotheek en het treinstation, op loopafstand.
Dit stijlvolle appartement, gebouwd in 2021, is hoogwaardig afgewerkt en van alle gemakken voorzien. Het beschikt over twee slaapkamers, een ruim balkon met prachtig uitzicht over de historische grachten van Coevorden.
Dankzij de uitstekende isolatie, kunststof kozijnen, warmtepomp en zonnepanelen is dit appartement niet alleen comfortabel, maar ook bijzonder energiezuinig, met een energielabel A++++. Het gebouw heeft een lift en het appartement beschikt over een eigen parkeerplaats met berging in de parkeerkelder en een schuifpui naar het balkon, waardoor u optimaal kunt genieten van licht en ruimte.
Kortom: een instapklaar, duurzaam appartement op een toplocatie in Coevorden.
INDELING:
Hal/entree met meterkast en toilet, bijkeuken met wasmachine-aansluiting. Woonkamer voorzien van pvc-vloer, open keuken en toegang tot een royaal balkon. Badkamer met inloopdouche, toilet en wastafelmeubel. Twee slaapkamers.
Extra informatie:
- Woning wordt verwarmd middels vloerverwarming en warmtepomp;
- Een eigen parkeerplaats in parkeerkelder. Berging voor de fietsen op de begane grond;
- Middels een video-intercom systeem kan de deur van de centrale hal geopend worden vanuit het eigen appartement;
- Appartement is voorzien van een royaal balkon met uitzicht op de haven/grachten;
- Liftinstallatie aanwezig;
- Servicekosten VvE € 261,18 per maand
Vragen over Bentheimerstraat 51?
Bel ons op 0524-525252 of WhatsApp via +31 524-525252 voor direct contact of maak een afspraak via ons contactformulier.


