Stieltjeskanaal 83, Stieltjeskanaal
€ 649.000 k.k.

Jouw makelaar voor deze woning
| 0524-525252 | |
| [email protected] | |
| +31 524-525252 |
Interesse in deze woning?
Over deze woning
Aan een landelijke weg langs het Stieltjeskanaal, met vrij uitzicht over het achterliggende landschap, staat deze karaktervolle vrijstaande woonboerderij uit 1910. Een plek waar historie en comfort naadloos in elkaar overgaan en waar je bij aankomst direct voelt dat dit geen doorsnee woning is.
De woning is de afgelopen jaren volledig opgeknapt, instapklaar en combineert authentieke details met hedendaags comfort. Met een woonoppervlakte van 188 m² en gelegen op een royaal perceel van 4015 m², biedt dit huis een zeldzame combinatie van ruimte, privacy en een vrij gevoel van wonen in het buitengebied.
De woonkamer met houtkachel vormt het hart van de woning en maakt direct indruk door de prachtige vide, die herinnert aan de oude stal die hier ooit was. De zichtbare gebinten en de karakteristieke stalraampjes geven de ruimte een warme en authentieke uitstraling. Aangrenzend aan de woonkamer bevindt zich de royale woonkeuken, waar binnen en buiten op natuurlijke wijze in elkaar overlopen en je het hele jaar door geniet van het uitzicht op de tuin en het omliggende groen.
Op de verdieping bevinden zich twee slaapkamers en een badkamer, praktisch en sfeervol ingericht. De woning is zeer goed na geïsoleerd en de tuin voorzien van zonnepanelen (met onder deze panelen een houtopslag), wat bijdraagt aan een comfortabel en energiezuinig geheel.
Daarnaast beschikt het erf over een volwaardig bijgebouw met een eigen woonkamer, keuken, badkamer en een slaapkamer op de vide, wat het geheel bijzonder veelzijdig maakt. Deze zelfstandige ruimte biedt tal van mogelijkheden: ideaal voor dubbele bewoning, bijvoorbeeld voor mantelzorg, inwonende familie of een opgroeiend kind dat behoefte heeft aan meer zelfstandigheid. Ook leent het bijgebouw zich uitstekend voor werken aan huis, zoals een kantoor, praktijkruimte of creatief atelier.
Daarnaast biedt het bijgebouw volop kansen voor recreatief of commercieel gebruik. Denk aan het realiseren van een sfeervolle bed & breakfast of gastenverblijf, waar bezoekers in alle comfort kunnen verblijven en optimaal kunnen genieten van de rust, ruimte en landelijke omgeving die deze plek zo bijzonder maakt. Het erf rondom de woning sluit hier naadloos op aan en versterkt deze beleving op natuurlijke wijze.
Hier ervaar je het buitenleven in optima forma, met een zwembad, moestuin, houten blokhut met overkapping en een natuurvijver die zorgen voor een ontspannen en veelzijdige leefomgeving. Verspreid over het ruime perceel vind je diverse bomen zoals appel, hazelaar en druif, aangevuld met een voedselbos dat bijdraagt aan een duurzame en groene leefstijl. Dit geheel maakt het een heerlijke plek om te wonen.
De huidige bewoners geven het volgende aan;
“Wij hebben jarenlang met erg veel plezier op deze mooie plek gewoond.
In de lente, zomer en herfst zijn de tuin met de fruitbomen, de moestuin, het zwembad en in het centrale hart de vijver ronduit geweldig. Ook van het feit dat je hier de hazen, fazanten, eekhoorns en reeën voorbij ziet komen én er jaarlijks eenden broeden in de eendenkooi, hebben wij volop genoten.
In de winter zit je heerlijk comfortabel bij de houtkachel in de ruime en sfeervolle woonkamer. Ook het gastenverblijf/atelier en de serre zijn fijne plekken om te verblijven.
Wij hopen dan ook dat de toekomstige bewoner(s) hier net zo prettig zullen gaan wonen als wij gedaan hebben.”
INDELING WONING
Onderverdieping: kelder.
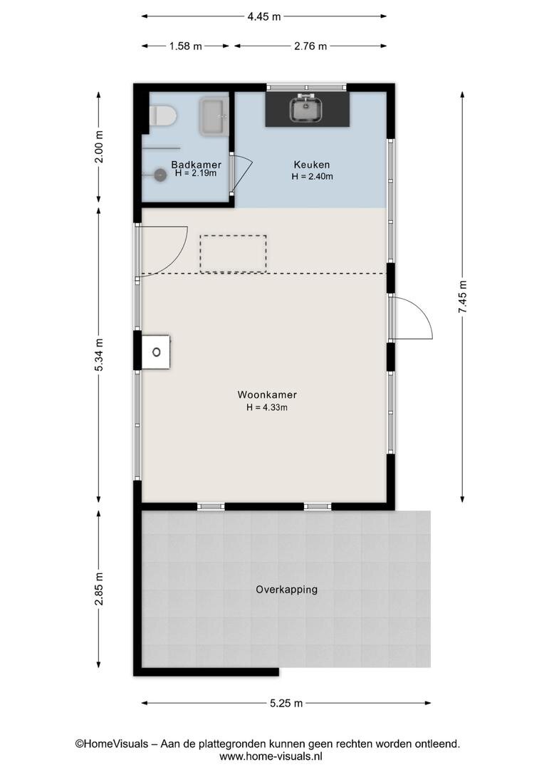
Begane grond: Entree met toilet. Ruime woonkamer met veel raampartijen, houten gebinten, vaste kasten en een vide. Via de woonkamer toegang tot de serre. Bijkeuken voorzien van wasmachineaansluiting. Ruime leefkeuken met deur naar de tuin en voorzien van keuken met inbouwapparatuur; o.a. vaatwasser, oven met gasfornuis en koelkast.
Eerste verdieping: Vide met uitzicht op de benedenverdieping. Twee ruime slaapkamers voorzien van dakramen en vaste kasten. Badkamer uit 2020 voorzien van douche, toilet en wastafelmeubel.
INDELING BIJGEBOUW
Begane grond: Woonkamer/werkruimte met palletkachel(2020) en grote raampartijen. Open keuken voorzien van keukenblokje met spoelbak. Badkamer voorzien van inloopdouche, toilet en wastafel.
Vide: slaapkamer.
Extra informatie:
- 16 zonnepanelen uit 2020;
- Remeha cv ketel uit 2010;
- in 2023 is de woning bijna geheel na geïsoleerd;
- het bijgebouw is in 2020 geïsoleerd en volledig gerenoveerd;
- energielabel C (uit 2018);
- na het tot stand komen van het energielabel zijn zonnepanelen aangebracht en is het woonhuis voorzien van isolatie volgens de laatste normen;
- 95% glasisolatie, verder volledig geïsoleerd;
- het bijgebouw is gasvrij en voorzien van palletkachel;
- beide rieten daken worden jaarlijks geïmpregneerd met een biologisch middel;
- meterkast is in 2020 vernieuwd;
- filter en pomp van het zwembad is in 2020 vervangen;
- prachtige tuin gelegen op het zuidwesten.
Volledige omschrijving
Minder omschrijving
De woning is de afgelopen jaren volledig opgeknapt, instapklaar en combineert authentieke details met hedendaags comfort. Met een woonoppervlakte van 188 m² en gelegen op een royaal perceel van 4015 m², biedt dit huis een zeldzame combinatie van ruimte, privacy en een vrij gevoel van wonen in het buitengebied.
De woonkamer met houtkachel vormt het hart van de woning en maakt direct indruk door de prachtige vide, die herinnert aan de oude stal die hier ooit was. De zichtbare gebinten en de karakteristieke stalraampjes geven de ruimte een warme en authentieke uitstraling. Aangrenzend aan de woonkamer bevindt zich de royale woonkeuken, waar binnen en buiten op natuurlijke wijze in elkaar overlopen en je het hele jaar door geniet van het uitzicht op de tuin en het omliggende groen.
Op de verdieping bevinden zich twee slaapkamers en een badkamer, praktisch en sfeervol ingericht. De woning is zeer goed na geïsoleerd en de tuin voorzien van zonnepanelen (met onder deze panelen een houtopslag), wat bijdraagt aan een comfortabel en energiezuinig geheel.
Daarnaast beschikt het erf over een volwaardig bijgebouw met een eigen woonkamer, keuken, badkamer en een slaapkamer op de vide, wat het geheel bijzonder veelzijdig maakt. Deze zelfstandige ruimte biedt tal van mogelijkheden: ideaal voor dubbele bewoning, bijvoorbeeld voor mantelzorg, inwonende familie of een opgroeiend kind dat behoefte heeft aan meer zelfstandigheid. Ook leent het bijgebouw zich uitstekend voor werken aan huis, zoals een kantoor, praktijkruimte of creatief atelier.
Daarnaast biedt het bijgebouw volop kansen voor recreatief of commercieel gebruik. Denk aan het realiseren van een sfeervolle bed & breakfast of gastenverblijf, waar bezoekers in alle comfort kunnen verblijven en optimaal kunnen genieten van de rust, ruimte en landelijke omgeving die deze plek zo bijzonder maakt. Het erf rondom de woning sluit hier naadloos op aan en versterkt deze beleving op natuurlijke wijze.
Hier ervaar je het buitenleven in optima forma, met een zwembad, moestuin, houten blokhut met overkapping en een natuurvijver die zorgen voor een ontspannen en veelzijdige leefomgeving. Verspreid over het ruime perceel vind je diverse bomen zoals appel, hazelaar en druif, aangevuld met een voedselbos dat bijdraagt aan een duurzame en groene leefstijl. Dit geheel maakt het een heerlijke plek om te wonen.
De huidige bewoners geven het volgende aan;
“Wij hebben jarenlang met erg veel plezier op deze mooie plek gewoond.
In de lente, zomer en herfst zijn de tuin met de fruitbomen, de moestuin, het zwembad en in het centrale hart de vijver ronduit geweldig. Ook van het feit dat je hier de hazen, fazanten, eekhoorns en reeën voorbij ziet komen én er jaarlijks eenden broeden in de eendenkooi, hebben wij volop genoten.
In de winter zit je heerlijk comfortabel bij de houtkachel in de ruime en sfeervolle woonkamer. Ook het gastenverblijf/atelier en de serre zijn fijne plekken om te verblijven.
Wij hopen dan ook dat de toekomstige bewoner(s) hier net zo prettig zullen gaan wonen als wij gedaan hebben.”
INDELING WONING
Onderverdieping: kelder.
Begane grond: Entree met toilet. Ruime woonkamer met veel raampartijen, houten gebinten, vaste kasten en een vide. Via de woonkamer toegang tot de serre. Bijkeuken voorzien van wasmachineaansluiting. Ruime leefkeuken met deur naar de tuin en voorzien van keuken met inbouwapparatuur; o.a. vaatwasser, oven met gasfornuis en koelkast.
Eerste verdieping: Vide met uitzicht op de benedenverdieping. Twee ruime slaapkamers voorzien van dakramen en vaste kasten. Badkamer uit 2020 voorzien van douche, toilet en wastafelmeubel.
INDELING BIJGEBOUW
Begane grond: Woonkamer/werkruimte met palletkachel(2020) en grote raampartijen. Open keuken voorzien van keukenblokje met spoelbak. Badkamer voorzien van inloopdouche, toilet en wastafel.
Vide: slaapkamer.
Extra informatie:
- 16 zonnepanelen uit 2020;
- Remeha cv ketel uit 2010;
- in 2023 is de woning bijna geheel na geïsoleerd;
- het bijgebouw is in 2020 geïsoleerd en volledig gerenoveerd;
- energielabel C (uit 2018);
- na het tot stand komen van het energielabel zijn zonnepanelen aangebracht en is het woonhuis voorzien van isolatie volgens de laatste normen;
- 95% glasisolatie, verder volledig geïsoleerd;
- het bijgebouw is gasvrij en voorzien van palletkachel;
- beide rieten daken worden jaarlijks geïmpregneerd met een biologisch middel;
- meterkast is in 2020 vernieuwd;
- filter en pomp van het zwembad is in 2020 vervangen;
- prachtige tuin gelegen op het zuidwesten.
Interesse?
Plan een bezichtiging voor Stieltjeskanaal 83.
Bel ons op 0524-525252 of WhatsApp via +31 524-525252 voor direct contact. Of laat jouw gegevens achter en wij nemen zo snel mogelijk contact met jou op.






