Sportparklaan 17, Schoonoord
€ 419.000 k.k.

Jouw makelaar voor deze woning
| 0524-525252 | |
| [email protected] | |
| +31 524-525252 |
Interesse in deze woning?
Over deze woning
Aan de rand van het dorp Schoonoord, op korte afstand van de sporthal en de dagelijkse voorzieningen, staat deze vrijstaande woning op een rustige locatie. Hier woont u met volop ruimte om u heen, terwijl winkels en andere voorzieningen zich op loop- en fietsafstand bevinden. De ligging combineert het gemak van het dorp met het gevoel van vrij en landelijk wonen.
De woning beschikt over drie slaapkamers en is door de jaren heen doorlopend gemoderniseerd. Op de begane grond bevindt zich een badkamer Daarnaast is er een garage met een praktische vliering voor extra bergruimte. Op eigen terrein is voldoende parkeergelegenheid voor meerdere auto’s. De woning is voorzien van zonnepanelen en heeft energielabel C, wat bijdraagt aan comfortabel en energiezuinig wonen.
De ruime achtertuin grenst direct aan de omliggende weilanden en biedt veel privacy en een vrij uitzicht. Een fijne plek om tot rust te komen en te genieten van het buitenleven.
Schoonoord zelf is een vriendelijk Drents dorp aan het Oranjekanaal, omringd door bossen, heide en uitgestrekte natuur. U vindt er alle dagelijkse voorzieningen zoals een supermarkt, basisschool, huisarts, tandarts en bakker. Ook zijn er diverse sportfaciliteiten aanwezig. De omgeving nodigt uit tot wandelen, fietsen en recreëren, met volop natuur en water in de directe nabijheid. Grotere plaatsen zoals Emmen, Assen en Groningen zijn bovendien goed bereikbaar, waardoor deze woning een mooie balans biedt tussen rust, ruimte en bereikbaarheid.
INDELING:
Kelder.
Begane grond: hal/entree met toilet. Badkamer voorzien van een wastafel met meubel en een inloopdouche.
Woonkamer met laminaatvloer. Open keuken voorzien van apparatuur: 5-pits gastoestel, afzuigkap, vaatwasser, koelkast en combi-oven. Bijkeuken met wasmachineaansluiting. Vrijstaande stenen garage met vliering.
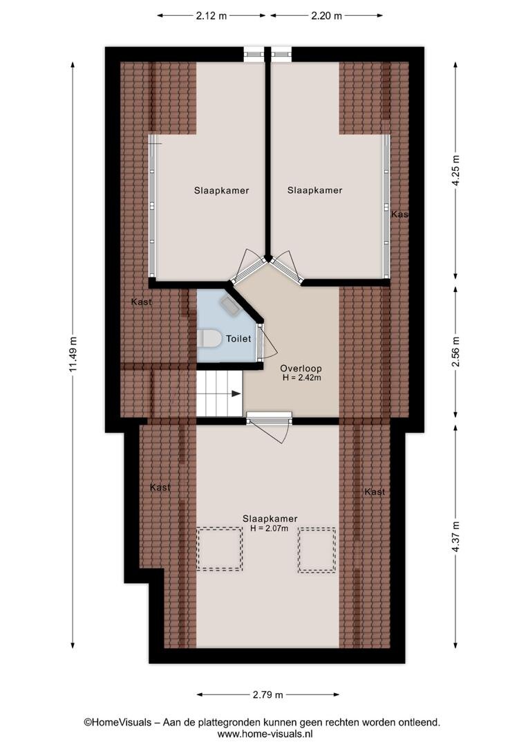
Eerste verdieping: overloop met toilet. Drie slaapkamers, allen voorzien van een laminaatvoer.
Extra informatie:
- verwarmen geschiedt middels radiatoren;
- woning heeft glas-, dak-, muur- en vloerisolatie;
- 12 zonnepanelen geplaatst in 2023;
- cv-ketel 2013;
- energielabel C;
- 2016 nieuwe elektra en riolering.
Volledige omschrijving
Minder omschrijving
De woning beschikt over drie slaapkamers en is door de jaren heen doorlopend gemoderniseerd. Op de begane grond bevindt zich een badkamer Daarnaast is er een garage met een praktische vliering voor extra bergruimte. Op eigen terrein is voldoende parkeergelegenheid voor meerdere auto’s. De woning is voorzien van zonnepanelen en heeft energielabel C, wat bijdraagt aan comfortabel en energiezuinig wonen.
De ruime achtertuin grenst direct aan de omliggende weilanden en biedt veel privacy en een vrij uitzicht. Een fijne plek om tot rust te komen en te genieten van het buitenleven.
Schoonoord zelf is een vriendelijk Drents dorp aan het Oranjekanaal, omringd door bossen, heide en uitgestrekte natuur. U vindt er alle dagelijkse voorzieningen zoals een supermarkt, basisschool, huisarts, tandarts en bakker. Ook zijn er diverse sportfaciliteiten aanwezig. De omgeving nodigt uit tot wandelen, fietsen en recreëren, met volop natuur en water in de directe nabijheid. Grotere plaatsen zoals Emmen, Assen en Groningen zijn bovendien goed bereikbaar, waardoor deze woning een mooie balans biedt tussen rust, ruimte en bereikbaarheid.
INDELING:
Kelder.
Begane grond: hal/entree met toilet. Badkamer voorzien van een wastafel met meubel en een inloopdouche.
Woonkamer met laminaatvloer. Open keuken voorzien van apparatuur: 5-pits gastoestel, afzuigkap, vaatwasser, koelkast en combi-oven. Bijkeuken met wasmachineaansluiting. Vrijstaande stenen garage met vliering.
Eerste verdieping: overloop met toilet. Drie slaapkamers, allen voorzien van een laminaatvoer.
Extra informatie:
- verwarmen geschiedt middels radiatoren;
- woning heeft glas-, dak-, muur- en vloerisolatie;
- 12 zonnepanelen geplaatst in 2023;
- cv-ketel 2013;
- energielabel C;
- 2016 nieuwe elektra en riolering.
Interesse?
Plan een bezichtiging voor Sportparklaan 17.
Bel ons op 0524-525252 of WhatsApp via +31 524-525252 voor direct contact. Of laat jouw gegevens achter en wij nemen zo snel mogelijk contact met jou op.






