Nieuwe Krim 37, Coevorden
€ 795.000 k.k.

Jouw makelaar voor deze woning
| 0524-525252 | |
| [email protected] | |
| +31 524-525252 |
Interesse in deze woning?
Over deze woning
Aan een rustig, doodlopend laantje aan de Nieuwe Krim 37 in Coevorden staat deze vrijstaande, volledig vernieuwde woning type landhuis. De oorspronkelijke woning dateert uit 1953, maar is vanaf 2007 compleet herbouwd en vergroot tot een moderne, sfeervolle woning met stijl, comfort en karakter. De ligging is landelijk en biedt een prachtig vrij uitzicht over de omliggende landerijen.
In de directe omgeving wordt eveneens nieuw gebouwd. De buren gaan hun huis helemaal vernieuwen en wonen daarom in de tijdelijk geplaatste woonunit.
De woning is volledig gasloos en heeft een energielabel A++ en is daarmee bijzonder energiezuinig. Dankzij de volledige isolatie, de warmtepomp en de aanwezigheid van maar liefst 30 zonnepanelen (beide geplaatst in 2022) profiteert u van lage energielasten en een duurzaam wooncomfort.
Met een woonoppervlakte van maar liefst 222 m² is er volop ruimte voor comfortabel wonen. De begane grond beschikt over een royale woonkeuken die in open verbinding staat met de woonkamer. De eikenhouten vloer, de keuken uitgevoerd in massief eiken en de trap van hout vormen samen een warm en stijlvol geheel. Karakteristieke accenten en een sfeervolle koffiebar versterken deze ambiance. Op de eerste verdieping loopt de eikenhouten vloer door en bevinden zich vier ruime slaapkamers en een bijzondere wellness-badkamer. Hier is gekozen voor bijpassende houten kasten en badkamermeubelen, terwijl de verhoogde jacuzzi centraal in de ruimte staat en een luxe uitstraling geeft.
Het perceel van 2970 m² biedt volop ruimte om te genieten van het buitenleven. Rondom de woning liggen verschillende zitjes waar u in alle rust kunt genieten van het uitzicht over de landerijen. Daarnaast is er een ruime schuur van 8 bij 4,75 meter met zolder en overkapping, een carport en een separate berging in de tuin voor extra opslagruimte.
De woning ligt in het landelijk gebied van Coevorden, Nieuwe Krim; een buurtschap met een gemoedelijke sfeer en een actieve gemeenschap. Voorzieningen zoals een supermarkt, basisschool en sportverenigingen zijn in de directe omgeving aanwezig. Het gezellige stadje Coevorden ligt op korte afstand en biedt een breed winkelaanbod, horecagelegenheden en een treinstation. Ook plaatsen als Hardenberg, Hoogeveen en Emmen liggen op 15 autominuten waardoor dit een ideale woonlocatie is voor wie rust en ruimte zoekt, maar toch niet te ver van de voorzieningen wil wonen.
De verkopers geven aan;
Met dubbele gevoelens nemen we afscheid van ons huis, waar we twintig jaar geleden met veel enthousiasme zijn neergestreken. Op deze rustige, prachtige plek stond ooit een wit gestuct oud huisje. Toen nieuwbouw verplicht in rode baksteen moest, hebben we een deel van het oorspronkelijke huisje behouden, zodat we de rest in dezelfde lichte kleur konden afwerken en het karakter kon blijven.
Het uitzicht maakt dit huis echt bijzonder. Door de grote ramen kijk je uit over natuurgebied De Dalerpeel, waar je de zon ziet zakken en regelmatig vogels en reeën voorbij ziet komen. Het water trekt volop leven aan en zorgt voor rust en ruimte om echt tot jezelf te komen.
We vertrekken omdat we dichter bij familie in het westen willen wonen, maar laten een unieke plek achter die ons altijd zal bijblijven.
INDELING:
Begane grond: Hal/entree met toilet. Ruime living voorzien van koffiebar, open keuken, veel lichtinval en prachtig uitzicht. Kantoorruimte (eventueel zitkamer of speelkamer). Open keuken voorzien van inbouwapparatuur en openslaande deuren naar de tuin. Bijkeuken met praktische bergruimte.
De gehele begane grond beschikt over vloerverwarming.
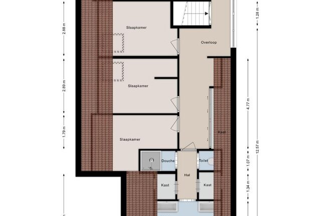
Eerste verdieping: Overloop met inbouwkasten. Vier slaapkamers. Luxe badkamer voorzien van vloerverwarming: hal met douche, toilet en bergruimtes/kledingkasten en voorzien van wastafelmeubels en ronde jacuzzi.
Tweede verdieping: Via vaste trap naar de geheel begaanbare zolderberging. (12 x 2,30 m en nokhoogte 1.50)
Extra informatie:
- energielabel A++;
- 30 zonnepanelen uit 2022;
- parkachtige tuin met uitzicht over landerijen en water;
- gasloos, verwarming en koeling door middel van een warmtepomp uit 2022.
Volledige omschrijving
Minder omschrijving
In de directe omgeving wordt eveneens nieuw gebouwd. De buren gaan hun huis helemaal vernieuwen en wonen daarom in de tijdelijk geplaatste woonunit.
De woning is volledig gasloos en heeft een energielabel A++ en is daarmee bijzonder energiezuinig. Dankzij de volledige isolatie, de warmtepomp en de aanwezigheid van maar liefst 30 zonnepanelen (beide geplaatst in 2022) profiteert u van lage energielasten en een duurzaam wooncomfort.
Met een woonoppervlakte van maar liefst 222 m² is er volop ruimte voor comfortabel wonen. De begane grond beschikt over een royale woonkeuken die in open verbinding staat met de woonkamer. De eikenhouten vloer, de keuken uitgevoerd in massief eiken en de trap van hout vormen samen een warm en stijlvol geheel. Karakteristieke accenten en een sfeervolle koffiebar versterken deze ambiance. Op de eerste verdieping loopt de eikenhouten vloer door en bevinden zich vier ruime slaapkamers en een bijzondere wellness-badkamer. Hier is gekozen voor bijpassende houten kasten en badkamermeubelen, terwijl de verhoogde jacuzzi centraal in de ruimte staat en een luxe uitstraling geeft.
Het perceel van 2970 m² biedt volop ruimte om te genieten van het buitenleven. Rondom de woning liggen verschillende zitjes waar u in alle rust kunt genieten van het uitzicht over de landerijen. Daarnaast is er een ruime schuur van 8 bij 4,75 meter met zolder en overkapping, een carport en een separate berging in de tuin voor extra opslagruimte.
De woning ligt in het landelijk gebied van Coevorden, Nieuwe Krim; een buurtschap met een gemoedelijke sfeer en een actieve gemeenschap. Voorzieningen zoals een supermarkt, basisschool en sportverenigingen zijn in de directe omgeving aanwezig. Het gezellige stadje Coevorden ligt op korte afstand en biedt een breed winkelaanbod, horecagelegenheden en een treinstation. Ook plaatsen als Hardenberg, Hoogeveen en Emmen liggen op 15 autominuten waardoor dit een ideale woonlocatie is voor wie rust en ruimte zoekt, maar toch niet te ver van de voorzieningen wil wonen.
De verkopers geven aan;
Met dubbele gevoelens nemen we afscheid van ons huis, waar we twintig jaar geleden met veel enthousiasme zijn neergestreken. Op deze rustige, prachtige plek stond ooit een wit gestuct oud huisje. Toen nieuwbouw verplicht in rode baksteen moest, hebben we een deel van het oorspronkelijke huisje behouden, zodat we de rest in dezelfde lichte kleur konden afwerken en het karakter kon blijven.
Het uitzicht maakt dit huis echt bijzonder. Door de grote ramen kijk je uit over natuurgebied De Dalerpeel, waar je de zon ziet zakken en regelmatig vogels en reeën voorbij ziet komen. Het water trekt volop leven aan en zorgt voor rust en ruimte om echt tot jezelf te komen.
We vertrekken omdat we dichter bij familie in het westen willen wonen, maar laten een unieke plek achter die ons altijd zal bijblijven.
INDELING:
Begane grond: Hal/entree met toilet. Ruime living voorzien van koffiebar, open keuken, veel lichtinval en prachtig uitzicht. Kantoorruimte (eventueel zitkamer of speelkamer). Open keuken voorzien van inbouwapparatuur en openslaande deuren naar de tuin. Bijkeuken met praktische bergruimte.
De gehele begane grond beschikt over vloerverwarming.
Eerste verdieping: Overloop met inbouwkasten. Vier slaapkamers. Luxe badkamer voorzien van vloerverwarming: hal met douche, toilet en bergruimtes/kledingkasten en voorzien van wastafelmeubels en ronde jacuzzi.
Tweede verdieping: Via vaste trap naar de geheel begaanbare zolderberging. (12 x 2,30 m en nokhoogte 1.50)
Extra informatie:
- energielabel A++;
- 30 zonnepanelen uit 2022;
- parkachtige tuin met uitzicht over landerijen en water;
- gasloos, verwarming en koeling door middel van een warmtepomp uit 2022.
Interesse?
Plan een bezichtiging voor Nieuwe Krim 37.
Bel ons op 0524-525252 of WhatsApp via +31 524-525252 voor direct contact. Of laat jouw gegevens achter en wij nemen zo snel mogelijk contact met jou op.







