Moesdistel 11, Coevorden
€ 449.000 k.k.

Jouw makelaar voor deze woning
| 0524-525252 | |
| [email protected] | |
| +31 524-525252 |
Interesse in deze woning?
Over deze woning
Soms komt er een woning voorbij waar alles klopt. Moesdistel 11 in Coevorden is zo’n huis. Een moderne, tot in detail verzorgde en sfeervolle geschakelde woning waar comfort, duurzaamheid en stijl naadloos samenkomen. Hier woon je in een rustige straat in de geliefde woonwijk De Heege, met alle ruimte voor het gezin en alle luxe van nu.
De woning, gebouwd in 2010, beschikt over maar liefst 164 m² woonoppervlakte en staat op een perceel van 272 m². Bij aankomst valt direct de verzorgde uitstraling op, met een eigen carport en garage. Alles is netjes, strak en met oog voor detail afgewerkt. De lichte woonkamer met fraaie vloer, open haard en moderne afwerking vormt het hart van het huis en biedt een heerlijke plek om te ontspannen. De gehele benedenverdieping is tevens voorzien van comfortabele vloerverwarming.
De keuken komt uit 2023 en uitgevoerd in een strak, modern design met hoogwaardige inbouwapparatuur, welke een fijne leefkeuken vormt. Op de verdiepingen bevinden zich vier ruime slaapkamers, stuk voor stuk netjes afgewerkt. De badkamer is in 2024 vernieuwd en straalt luxe en comfort uit met een moderne uitstraling en hoogwaardige materialen. Ook hier is gekozen voor een tijdloze, stijlvolle afwerking.
Duurzaamheid staat centraal in deze woning. Met energielabel A+, volledig gasloos, een warmtepomp, airconditioningsunits en 17 zonnepanelen is dit huis volledig klaar voor de toekomst.
Aansluitend aan de woning vindt je de praktische garage, die niet alleen bergruimte biedt maar ook een directe doorgang naar de overkapping en berging achter de woning. Hier is een bijzonder fijne plek gecreëerd waar je beschut kunt zitten, waardoor je al vroeg in het voorjaar en tot laat in het najaar van het buitenleven geniet.
De onderhoudsvriendelijke tuin is gelegen op het zuidoosten, waardoor je hier volop van de zon geniet en een heerlijke plek hebt om in alle rust buiten te ontspannen.
De ligging in woonwijk De Heege maakt het geheel compleet. Dit is een rustige en kindvriendelijke wijk met veel groen, speelvoorzieningen en een prettige woonomgeving. Coevorden zelf is een sfeervolle vestingstad met een rijke historie, goede voorzieningen, scholen, sportfaciliteiten en een gezellig centrum met winkels en horeca. Bovendien zijn uitvalswegen en openbaar vervoer goed bereikbaar, waardoor je hier rustig woont met alles binnen handbereik.
INDELING
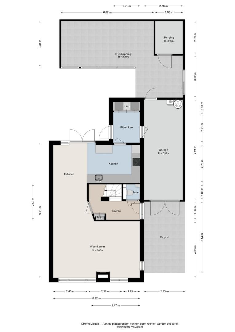
Begane grond: Entree met toilet en trap naar de eerste verdieping. L-vormige woonkamer voorzien van openhaard en pvc-vloer. Eetkamer met openslaande deuren naar de tuin. Open keuken uit 2023 voorzien van inbouwapparatuur, o.a. Quooker kraan met Cube(ijskoud en bruiswater), inductiekookplaat met geïntegreerde afzuiging, vaatwasser, oven, steamer met oven, koelkast, vriezer en ijsblokjesmachine. Praktische bijkeuken voorzien van vaste kastenwand met wasmachineaansluiting, bergruimte en diepvries.
Garage met keukenblok en warmtepomp.
Eerste verdieping: Overloop. Drie ruime slaapkamers. Luxe badkamer uit 2024 voorzien van inloopdouche, dubbele wastafel, toilet en ligbad.
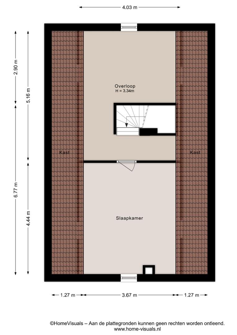
Tweede verdieping: Overloop. Vierde slaapkamer.
Extra informatie:
- verwarming doormiddel van vloerverwarming en airconditioningunits;
- volledig geïsoleerd;
- energielabel A+;
- warmtepomp, boiler en airco woonkamer uit 2023;
- airco overloop uit 2024;
- waterontharder aanwezig (Digisoft);
- platte daken garage en overkapping geïsoleerd met PIR in 2023;
- energielabel A+;
- tuin op het zuidoosten.
Volledige omschrijving
Minder omschrijving
De woning, gebouwd in 2010, beschikt over maar liefst 164 m² woonoppervlakte en staat op een perceel van 272 m². Bij aankomst valt direct de verzorgde uitstraling op, met een eigen carport en garage. Alles is netjes, strak en met oog voor detail afgewerkt. De lichte woonkamer met fraaie vloer, open haard en moderne afwerking vormt het hart van het huis en biedt een heerlijke plek om te ontspannen. De gehele benedenverdieping is tevens voorzien van comfortabele vloerverwarming.
De keuken komt uit 2023 en uitgevoerd in een strak, modern design met hoogwaardige inbouwapparatuur, welke een fijne leefkeuken vormt. Op de verdiepingen bevinden zich vier ruime slaapkamers, stuk voor stuk netjes afgewerkt. De badkamer is in 2024 vernieuwd en straalt luxe en comfort uit met een moderne uitstraling en hoogwaardige materialen. Ook hier is gekozen voor een tijdloze, stijlvolle afwerking.
Duurzaamheid staat centraal in deze woning. Met energielabel A+, volledig gasloos, een warmtepomp, airconditioningsunits en 17 zonnepanelen is dit huis volledig klaar voor de toekomst.
Aansluitend aan de woning vindt je de praktische garage, die niet alleen bergruimte biedt maar ook een directe doorgang naar de overkapping en berging achter de woning. Hier is een bijzonder fijne plek gecreëerd waar je beschut kunt zitten, waardoor je al vroeg in het voorjaar en tot laat in het najaar van het buitenleven geniet.
De onderhoudsvriendelijke tuin is gelegen op het zuidoosten, waardoor je hier volop van de zon geniet en een heerlijke plek hebt om in alle rust buiten te ontspannen.
De ligging in woonwijk De Heege maakt het geheel compleet. Dit is een rustige en kindvriendelijke wijk met veel groen, speelvoorzieningen en een prettige woonomgeving. Coevorden zelf is een sfeervolle vestingstad met een rijke historie, goede voorzieningen, scholen, sportfaciliteiten en een gezellig centrum met winkels en horeca. Bovendien zijn uitvalswegen en openbaar vervoer goed bereikbaar, waardoor je hier rustig woont met alles binnen handbereik.
INDELING
Begane grond: Entree met toilet en trap naar de eerste verdieping. L-vormige woonkamer voorzien van openhaard en pvc-vloer. Eetkamer met openslaande deuren naar de tuin. Open keuken uit 2023 voorzien van inbouwapparatuur, o.a. Quooker kraan met Cube(ijskoud en bruiswater), inductiekookplaat met geïntegreerde afzuiging, vaatwasser, oven, steamer met oven, koelkast, vriezer en ijsblokjesmachine. Praktische bijkeuken voorzien van vaste kastenwand met wasmachineaansluiting, bergruimte en diepvries.
Garage met keukenblok en warmtepomp.
Eerste verdieping: Overloop. Drie ruime slaapkamers. Luxe badkamer uit 2024 voorzien van inloopdouche, dubbele wastafel, toilet en ligbad.
Tweede verdieping: Overloop. Vierde slaapkamer.
Extra informatie:
- verwarming doormiddel van vloerverwarming en airconditioningunits;
- volledig geïsoleerd;
- energielabel A+;
- warmtepomp, boiler en airco woonkamer uit 2023;
- airco overloop uit 2024;
- waterontharder aanwezig (Digisoft);
- platte daken garage en overkapping geïsoleerd met PIR in 2023;
- energielabel A+;
- tuin op het zuidoosten.
Interesse?
Plan een bezichtiging voor Moesdistel 11.
Bel ons op 0524-525252 of WhatsApp via +31 524-525252 voor direct contact. Of laat jouw gegevens achter en wij nemen zo snel mogelijk contact met jou op.






