Moesdistel 10, Coevorden
€ 649.000 k.k.

Jouw makelaar voor deze woning
| 0524-525252 | |
| [email protected] | |
| +31 524-525252 |
Interesse in deze woning?
Over deze woning
In de jonge en geliefde woonwijk Heege in Coevorden staat deze moderne vrijstaande woning met aangebouwde bijkeuken en garage uit 2023, een huis dat volledig klaar is voor de toekomst. De woning is gasloos en voorzien van een warmtepomp, 12 zonnepanelen en energielabel A++, wat zorgt voor comfortabel en duurzaam wonen met lage energielasten. Binnen valt direct de hoogwaardige en luxe afwerking op. De PVC vloer in combinatie met vloerverwarming door de gehele woning geeft een strakke uitstraling en een aangenaam wooncomfort.
De ruime woonkeuken vormt het hart van het huis en is een fijne plek om samen te komen. Dankzij de schuifdeuren loop je zo de tuin in. De woning beschikt over vier slaapkamers, waardoor er volop ruimte is voor een gezin, thuiswerken of hobby’s. Alles is licht, modern en praktisch ingedeeld, met oog voor detail en woonplezier.
De tuin is onderhoudsvriendelijk aangelegd en biedt volop privacy. Een ruime houten overkapping met schuifdeuren maakt het mogelijk om het hele jaar door van het buitenleven te genieten. Daarnaast is er een handige achterom, wat het dagelijks gebruik extra comfortabel maakt.
Coevorden is een sfeervolle stad met een rijke geschiedenis, een gezellig centrum en een breed aanbod aan voorzieningen. Winkels, scholen, sportverenigingen en horecagelegenheden zijn allemaal binnen handbereik. De wijk Heege staat bekend als rustig en kindvriendelijk, met veel groen en goede verbindingen richting het centrum en de uitvalswegen. Een ideale woonomgeving voor wie modern en duurzaam wil wonen, zonder in te leveren op comfort en leefkwaliteit.
Indeling:
Begane grond: hal/entree met toilet. Woonkamer. Woonkeuken voorzien van een inductiekookplaat met afzuiging, koelkast, oven, combimagnetron, cooker en vaatwasser. Bijkeuken met vaste kast. Garage/speelkamer. De begane grond is voorzien van een pvc-vloer met vloerverwarming.
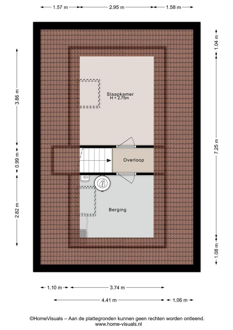
Eerste verdieping: overloop. 3 Slaapkamers voorzien van pvc-vloer met vloerverwarming. Badkamer met inloopdouche, dubbele wastafel met meubel en toilet. Via vaste trap naar...
Tweede verdieping: Slaapkamer met pvc-vloer en vloerverwarming. Kantoor met boiler, warmtepomp en wasmachine aansluiting.
Extra informatie:
- verwarmen geschiedt middels warmtepomp en vloerverwarming;
- woning is volledig geïsoleerd;
- 12 zonnepanelen 2023;
- energielabel A++;
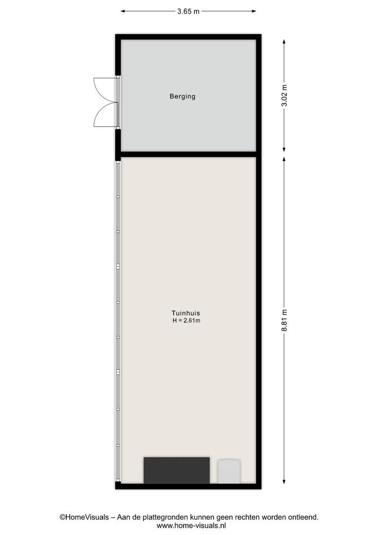
- houten overkapping met berging.
Volledige omschrijving
Minder omschrijving
De ruime woonkeuken vormt het hart van het huis en is een fijne plek om samen te komen. Dankzij de schuifdeuren loop je zo de tuin in. De woning beschikt over vier slaapkamers, waardoor er volop ruimte is voor een gezin, thuiswerken of hobby’s. Alles is licht, modern en praktisch ingedeeld, met oog voor detail en woonplezier.
De tuin is onderhoudsvriendelijk aangelegd en biedt volop privacy. Een ruime houten overkapping met schuifdeuren maakt het mogelijk om het hele jaar door van het buitenleven te genieten. Daarnaast is er een handige achterom, wat het dagelijks gebruik extra comfortabel maakt.
Coevorden is een sfeervolle stad met een rijke geschiedenis, een gezellig centrum en een breed aanbod aan voorzieningen. Winkels, scholen, sportverenigingen en horecagelegenheden zijn allemaal binnen handbereik. De wijk Heege staat bekend als rustig en kindvriendelijk, met veel groen en goede verbindingen richting het centrum en de uitvalswegen. Een ideale woonomgeving voor wie modern en duurzaam wil wonen, zonder in te leveren op comfort en leefkwaliteit.
Indeling:
Begane grond: hal/entree met toilet. Woonkamer. Woonkeuken voorzien van een inductiekookplaat met afzuiging, koelkast, oven, combimagnetron, cooker en vaatwasser. Bijkeuken met vaste kast. Garage/speelkamer. De begane grond is voorzien van een pvc-vloer met vloerverwarming.
Eerste verdieping: overloop. 3 Slaapkamers voorzien van pvc-vloer met vloerverwarming. Badkamer met inloopdouche, dubbele wastafel met meubel en toilet. Via vaste trap naar...
Tweede verdieping: Slaapkamer met pvc-vloer en vloerverwarming. Kantoor met boiler, warmtepomp en wasmachine aansluiting.
Extra informatie:
- verwarmen geschiedt middels warmtepomp en vloerverwarming;
- woning is volledig geïsoleerd;
- 12 zonnepanelen 2023;
- energielabel A++;
- houten overkapping met berging.
Interesse?
Plan een bezichtiging voor Moesdistel 10.
Bel ons op 0524-525252 of WhatsApp via +31 524-525252 voor direct contact. Of laat jouw gegevens achter en wij nemen zo snel mogelijk contact met jou op.








