Meester Christiaansstr 13, Coevorden
€ 272.500 k.k.

Jouw makelaar voor deze woning
| 0524-525252 | |
| [email protected] | |
| +31 524-525252 |
Heb je vragen?
Over deze woning
Nieuw in de verkoop: Meester Christiaansstraat 13 Coevorden (Steenwijksmoer).
Deze moderne en energiezuinige tussenwoning in Steenwijksmoer is een ideale plek voor wie comfortabel en duurzaam wil wonen. De woning is volledig geïsoleerd en voorzien van een warmtepomp, tien zonnepanelen en een eigen laadpaal, wat resulteert in een uitstekend energielabel A+++. Dankzij de kunststof kozijnen met HR++ glas en de compleet vernieuwde meterkast in 2022 is het huis klaar voor de toekomst. Binnen biedt de woning volop ruimte met vier slaapkamers, en de moderne badkamer uit 2022 is voorzien van vloerverwarming. Alle slaapkamers beschikken over airconditioning, wat zorgt voor extra comfort gedurende het hele jaar.
De achtertuin is onderhoudsvriendelijk aangelegd, beschikt over een stenen schuurtje voor extra bergruime en een achterom.
De woning ligt in een rustige, kindvriendelijke buurt met een basisschool, dorpshuis en een actieve sportvereniging. Coevorden ligt op slechts vijf minuten rijden en biedt een middelbare school, een winkelcentrum met gezellige horecagelegenheden en een treinstation. Daarnaast zijn de uitvalswegen naar Emmen en Hoogeveen snel bereikbaar.
INDELING:
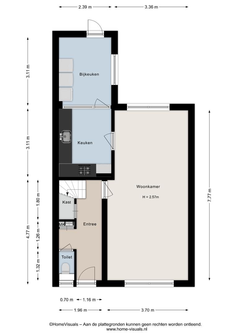
Begane grond: hal/entree met toilet. Doorzon woonkamer met pvc-vloer. Dichte keuken voorzien van apparatuur: gaskookplaat met afzuigkap, koelkast met magnetron en vaatwasser. Bijkeuken met wasmachineaansluiting.
Eerste verdieping: overloop met vaste kast. Drie slaapkamers, allen voorzien van airconditioning. Twee slaapkamers met vaste kasten wand. Badkamer voorzien van vloerverwarming en met wastafel en meubel, inloopdouche en toilet. Via vaste trap naar...
Tweede verdieping: overloop met berging, mechanische ventilatie, omvormer 2e berging met boilers. Vierde slaapkamer met dakraam.
Extra informatie:
- verwarmen geschiedt middels radiatoren, vloerverwarming, warmtepomp en airconditioning;
- woning is volledig geïsoleerd;
- energielabel A+++;
- airconditioning 2022;
- warmtepomp 2023;
- na- isolatie woonkamer 2023;
- laadpaal blijft achter;
- 10 zonnepanelen 2017.
- voor meer binnenfoto's: mail ons voor een brochure.
Een ideale combinatie van duurzaamheid, comfort en een fijne woonomgeving. Maak snel een afspraak voor een bezichtiging en ontdek deze tussenwoning zelf!
Volledige omschrijving
Minder omschrijving
Deze moderne en energiezuinige tussenwoning in Steenwijksmoer is een ideale plek voor wie comfortabel en duurzaam wil wonen. De woning is volledig geïsoleerd en voorzien van een warmtepomp, tien zonnepanelen en een eigen laadpaal, wat resulteert in een uitstekend energielabel A+++. Dankzij de kunststof kozijnen met HR++ glas en de compleet vernieuwde meterkast in 2022 is het huis klaar voor de toekomst. Binnen biedt de woning volop ruimte met vier slaapkamers, en de moderne badkamer uit 2022 is voorzien van vloerverwarming. Alle slaapkamers beschikken over airconditioning, wat zorgt voor extra comfort gedurende het hele jaar.
De achtertuin is onderhoudsvriendelijk aangelegd, beschikt over een stenen schuurtje voor extra bergruime en een achterom.
De woning ligt in een rustige, kindvriendelijke buurt met een basisschool, dorpshuis en een actieve sportvereniging. Coevorden ligt op slechts vijf minuten rijden en biedt een middelbare school, een winkelcentrum met gezellige horecagelegenheden en een treinstation. Daarnaast zijn de uitvalswegen naar Emmen en Hoogeveen snel bereikbaar.
INDELING:
Begane grond: hal/entree met toilet. Doorzon woonkamer met pvc-vloer. Dichte keuken voorzien van apparatuur: gaskookplaat met afzuigkap, koelkast met magnetron en vaatwasser. Bijkeuken met wasmachineaansluiting.
Eerste verdieping: overloop met vaste kast. Drie slaapkamers, allen voorzien van airconditioning. Twee slaapkamers met vaste kasten wand. Badkamer voorzien van vloerverwarming en met wastafel en meubel, inloopdouche en toilet. Via vaste trap naar...
Tweede verdieping: overloop met berging, mechanische ventilatie, omvormer 2e berging met boilers. Vierde slaapkamer met dakraam.
Extra informatie:
- verwarmen geschiedt middels radiatoren, vloerverwarming, warmtepomp en airconditioning;
- woning is volledig geïsoleerd;
- energielabel A+++;
- airconditioning 2022;
- warmtepomp 2023;
- na- isolatie woonkamer 2023;
- laadpaal blijft achter;
- 10 zonnepanelen 2017.
- voor meer binnenfoto's: mail ons voor een brochure.
Een ideale combinatie van duurzaamheid, comfort en een fijne woonomgeving. Maak snel een afspraak voor een bezichtiging en ontdek deze tussenwoning zelf!
Vragen over Meester Christiaansstr 13?
Bel ons op 0524-525252 of WhatsApp via +31 524-525252 voor direct contact of maak een afspraak via ons contactformulier.








