Leen Heskampstraat 3, Coevorden
€ 449.000 k.k.

Jouw makelaar voor deze woning
| 0524-525252 | |
| [email protected] | |
| +31 524-525252 |
Interesse in deze woning?
Over deze woning
Aan de Leen Heskampstraat in Coevorden staat deze fraaie en ruime twee-onder-een-kapwoning met aangebouwde bijkeuken/wasruimte en garage, gelegen in de geliefde woonwijk Ossehaar. De woning is gebouwd in 2003, verkeert in een goede staat van onderhoud en is altijd met zorg bewoond door de eerste eigenaar. De ligging is bijzonder aantrekkelijk, met vrij uitzicht op het water, wat zorgt voor een rustige en groene woonbeleving.
Ossehaar is een moderne en ruim opgezette woonwijk met veel groen, waterpartijen en goede voorzieningen. Scholen, winkels en sportvoorzieningen zijn in de nabije omgeving aanwezig en ook uitvalswegen richting omliggende plaatsen zijn goed bereikbaar. Coevorden biedt daarnaast een sfeervol centrum met een gevarieerd aanbod aan winkels, horeca en overige voorzieningen.
De woning beschikt over een zonnige tuin op het zuiden, waarin een houten overkapping met bergruimte en een zonnescherm is geplaatst. Een fijne plek om tot in de avonduren van het buitenleven te genieten.
Een comfortabele, moderne woning op een mooie locatie in Ossehaar, klaar voor nieuwe bewoners.
INDELING:
Begane grond: Hal/entree met toilet. Ruime en lichte woonkamer, tuingericht. Halfopen keuken voorzien van een inbouwkeuken met inductiekookplaat, afzuigkap, koelkast, vriezer, combi-oven en vaatwasser. Aangrenzend bevindt zich de bijkeuken met wasmachineaansluiting en toegang tot de aangebouwde garage.
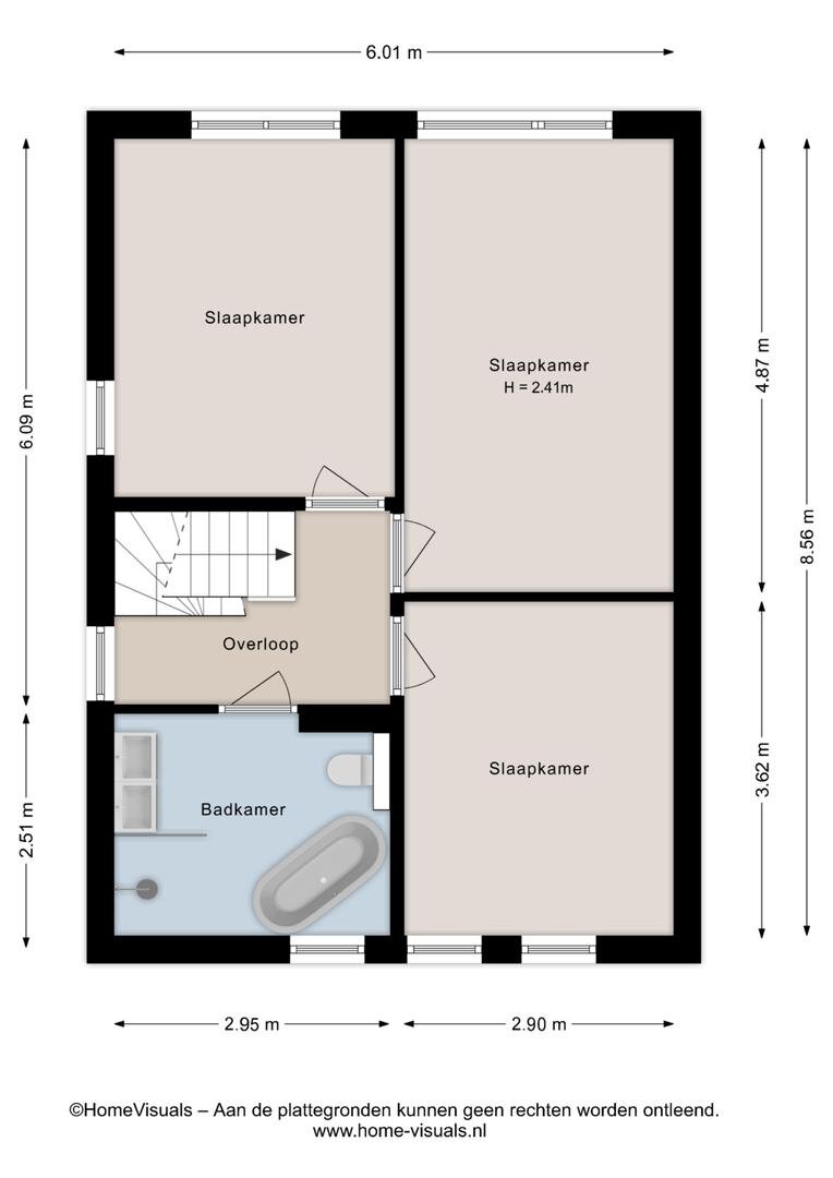
Eerste verdieping: Overloop. Drie slaapkamers, waarvan twee zijn voorzien van rolluiken. Moderne badkamer (2024) met ligbad, inloopdouche, toilet en wastafelmeubel.
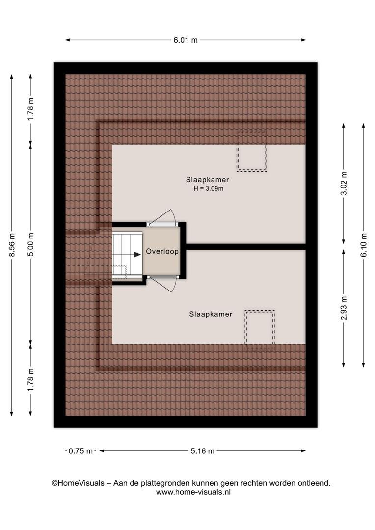
Tweede verdieping: Via vaste trap te bereiken verdieping met overloop. Twee slaapkamers. Opstelplaats van de CV-ketel, mechanische ventilatie en zonneboiler.
Extra informatie:
- twee-onder-een-kapwoning met aangebouwde bijkeuken en garage;
- bouwjaar 2003;
- energielabel A;
- volledig geïsoleerd;
- Daalderop Monosolar zonneboiler aanwezig uit 2003;
- automatische zonwering aan tuinzijde aanwezig;
- 9 zonnepanelen geplaatst in 2022, volledig eigendom;
- Intergas CV-ketel uit 2020;
- tuin op het zuiden.
Volledige omschrijving
Minder omschrijving
Ossehaar is een moderne en ruim opgezette woonwijk met veel groen, waterpartijen en goede voorzieningen. Scholen, winkels en sportvoorzieningen zijn in de nabije omgeving aanwezig en ook uitvalswegen richting omliggende plaatsen zijn goed bereikbaar. Coevorden biedt daarnaast een sfeervol centrum met een gevarieerd aanbod aan winkels, horeca en overige voorzieningen.
De woning beschikt over een zonnige tuin op het zuiden, waarin een houten overkapping met bergruimte en een zonnescherm is geplaatst. Een fijne plek om tot in de avonduren van het buitenleven te genieten.
Een comfortabele, moderne woning op een mooie locatie in Ossehaar, klaar voor nieuwe bewoners.
INDELING:
Begane grond: Hal/entree met toilet. Ruime en lichte woonkamer, tuingericht. Halfopen keuken voorzien van een inbouwkeuken met inductiekookplaat, afzuigkap, koelkast, vriezer, combi-oven en vaatwasser. Aangrenzend bevindt zich de bijkeuken met wasmachineaansluiting en toegang tot de aangebouwde garage.
Eerste verdieping: Overloop. Drie slaapkamers, waarvan twee zijn voorzien van rolluiken. Moderne badkamer (2024) met ligbad, inloopdouche, toilet en wastafelmeubel.
Tweede verdieping: Via vaste trap te bereiken verdieping met overloop. Twee slaapkamers. Opstelplaats van de CV-ketel, mechanische ventilatie en zonneboiler.
Extra informatie:
- twee-onder-een-kapwoning met aangebouwde bijkeuken en garage;
- bouwjaar 2003;
- energielabel A;
- volledig geïsoleerd;
- Daalderop Monosolar zonneboiler aanwezig uit 2003;
- automatische zonwering aan tuinzijde aanwezig;
- 9 zonnepanelen geplaatst in 2022, volledig eigendom;
- Intergas CV-ketel uit 2020;
- tuin op het zuiden.
Interesse?
Plan een bezichtiging voor Leen Heskampstraat 3.
Bel ons op 0524-525252 of WhatsApp via +31 524-525252 voor direct contact. Of laat jouw gegevens achter en wij nemen zo snel mogelijk contact met jou op.








