Klooster 2, Coevorden
€ 575.000 k.k.

Jouw makelaar voor deze woning
| 0524-525252 | |
| [email protected] | |
| +31 524-525252 |
Interesse in deze woning?
Over deze woning
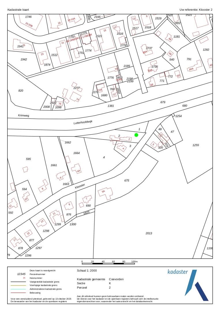
Op een prachtige, vrije locatie aan het Klooster in Coevorden staat deze ruime vrijstaande woning met aan- en bijgebouwen. De woning heeft een woonoppervlakte van 164 m² en staat op een royaal perceel van maar liefst 1.790 m², waardoor je hier volop kunt genieten van het buitenleven en de groene omgeving.
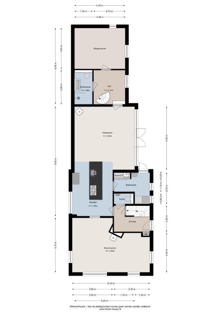
De woning biedt een praktische en comfortabele indeling. Op de begane grond bevinden zich de woonkamer, keuken, een slaapkamer en de badkamer, waardoor slapen en baden op de begane grond mogelijk is en de woning levensloopbestendig te bewonen is. Op de verdieping zijn nog drie volwaardige slaapkamers aanwezig, wat het totaal op vier slaapkamers brengt. Daarmee is er volop ruimte voor een gezin, thuiswerken of hobby’s.
Rondom de woning ligt een ruime tuin met veel privacy en een vrij gevoel. Het royale perceel biedt tal van mogelijkheden voor tuinliefhebbers, spelen of het relaxen in de royale overkapping. De tuin beschikt over meerdere zitmogelijkheden. Hier woon je heerlijk rustig, terwijl de dagelijkse voorzieningen goed bereikbaar zijn.
De ligging in Coevorden is aantrekkelijk. Deze karakteristieke vestingstad staat bekend om haar rijke historie, gezellige centrum en complete voorzieningenniveau met winkels, scholen, sportverenigingen en horeca. Daarnaast is de bereikbaarheid richting Emmen en de Duitse grens goed en biedt de groene omgeving volop recreatiemogelijkheden.
Deze woning combineert vrij wonen met comfort en biedt volop mogelijkheden voor de toekomst.
INDELING
Begane grond: Hal/entree met toilet en vaste trap naar 1e verdieping. Woonkamer met veel lichtinval voorzien van een eikenvloer en een sierhaard. Woonkeuken met gaskookplaat, afzuigkap, vaatwasser, oven en koelkast. Bijkeuken voorzien van wasmachineaansluiting. Tussenhal voorzien van wenteltrap naar 3e slaapkamer. Badkamer voorzien van vloerverwarming, inloopdouche, toilet en wastafelmeubel. Slaapkamer.
Eerste verdieping: overloop. 2 slaapkamers. Badkamer voorzien van douche, ligbad, toilet en wastafel.
Eerste verdieping aanbouw: 3e slaapkamer.
Extra informatie:
- 10 zonnepanelen (2025);
- Nefit CV ketel 2019;
- energielabel D;
- aanbouw uit 2008;
- tuin op het noordwesten.
Volledige omschrijving
Minder omschrijving
De woning biedt een praktische en comfortabele indeling. Op de begane grond bevinden zich de woonkamer, keuken, een slaapkamer en de badkamer, waardoor slapen en baden op de begane grond mogelijk is en de woning levensloopbestendig te bewonen is. Op de verdieping zijn nog drie volwaardige slaapkamers aanwezig, wat het totaal op vier slaapkamers brengt. Daarmee is er volop ruimte voor een gezin, thuiswerken of hobby’s.
Rondom de woning ligt een ruime tuin met veel privacy en een vrij gevoel. Het royale perceel biedt tal van mogelijkheden voor tuinliefhebbers, spelen of het relaxen in de royale overkapping. De tuin beschikt over meerdere zitmogelijkheden. Hier woon je heerlijk rustig, terwijl de dagelijkse voorzieningen goed bereikbaar zijn.
De ligging in Coevorden is aantrekkelijk. Deze karakteristieke vestingstad staat bekend om haar rijke historie, gezellige centrum en complete voorzieningenniveau met winkels, scholen, sportverenigingen en horeca. Daarnaast is de bereikbaarheid richting Emmen en de Duitse grens goed en biedt de groene omgeving volop recreatiemogelijkheden.
Deze woning combineert vrij wonen met comfort en biedt volop mogelijkheden voor de toekomst.
INDELING
Begane grond: Hal/entree met toilet en vaste trap naar 1e verdieping. Woonkamer met veel lichtinval voorzien van een eikenvloer en een sierhaard. Woonkeuken met gaskookplaat, afzuigkap, vaatwasser, oven en koelkast. Bijkeuken voorzien van wasmachineaansluiting. Tussenhal voorzien van wenteltrap naar 3e slaapkamer. Badkamer voorzien van vloerverwarming, inloopdouche, toilet en wastafelmeubel. Slaapkamer.
Eerste verdieping: overloop. 2 slaapkamers. Badkamer voorzien van douche, ligbad, toilet en wastafel.
Eerste verdieping aanbouw: 3e slaapkamer.
Extra informatie:
- 10 zonnepanelen (2025);
- Nefit CV ketel 2019;
- energielabel D;
- aanbouw uit 2008;
- tuin op het noordwesten.
Interesse?
Plan een bezichtiging voor Klooster 2.
Bel ons op 0524-525252 of WhatsApp via +31 524-525252 voor direct contact. Of laat jouw gegevens achter en wij nemen zo snel mogelijk contact met jou op.














