Joke Smitstraat 51, Coevorden
€ 249.000 k.k.

Jouw makelaar voor deze woning
| 0524-525252 | |
| [email protected] | |
| +31 524-525252 |
Interesse in deze woning?
Over deze woning
In de fijne Joke Smitstraat staat deze fijne tussenwoning uit 1986, een ideale plek voor wie comfortabel en energiezuinig wil wonen. De woning beschikt over circa 113 m2 woonoppervlakte en is voorzien van dak- en muurisolatie en 95%
dubbelglas. Op de eerste verdieping bevinden zich drie goed bemeten slaapkamers en via een vaste trap is de zolder bereikbaar, waar eenvoudig een extra slaapkamer, werkruimte of hobbykamer kan worden gerealiseerd.
De zonnige achtertuin met overkapping ligt op het zuiden en biedt volop ruimte om te genieten van lange dagen buiten. Achter in de tuin staat een stenen berging en dankzij de achterom is de tuin ook praktisch in gebruik. Aan de achterzijde is de woning vrij gelegen door de aanwezigheid van parkeerplaatsen en een speeltuin. Met een perceel van circa 154 m2, een prettige indeling en een rustige ligging is dit een woning waar je je direct thuis voelt.
De woning is gelegen in de woonwijk Ballast, een rustige en groene wijk die bekendstaat om haar prettige leefomgeving. Ballast is ruim opgezet, kindvriendelijk en voorzien van diverse speelgelegenheden. Scholen, winkels en sportvoorzieningen bevinden zich op korte afstand, waardoor alle dagelijkse voorzieningen gemakkelijk bereikbaar zijn. De wijk heeft een goede bereikbaarheid en biedt een fijne balans tussen rust en levendigheid.
Coevorden is een karakteristieke vestingstad met een rijke historie en een gezellig centrum. Je vindt er een gevarieerd aanbod aan winkels, horeca en culturele voorzieningen, evenals het kasteel van Coevorden dat het historische hart van de stad vormt. Daarnaast beschikt Coevorden over een treinstation en goede uitvalswegen richting Emmen, Hoogeveen en Duitsland, wat de stad aantrekkelijk maakt voor zowel gezinnen als forenzen. De combinatie van historie, voorzieningen en een groene omgeving maakt Coevorden tot een prettige plek om te wonen.
INDELING
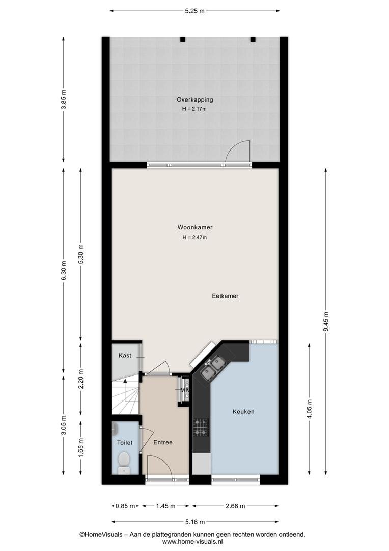
Begane grond: Entree met toilet en trap naar de eerste verdieping. Woonkamer met grote raampartij en laminaatvloer.
Half open keuken voorzien van 4-pits gasfornuis.
Ruime overkapping.
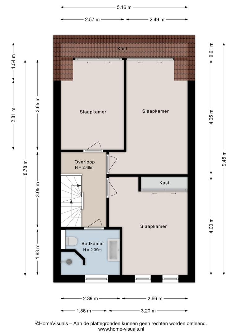
Eerste verdieping: Overloop. Drie slaapkamers voorzien van vaste kasten. Badkamer voorzien van inloopdouche, toilet en wastafelmeubel. Met vaste trap naar..
Zolder met wasmachineaansluiting en vliering.
Extra informatie:
- tuin op het zuiden;
- Intergas cv-ketel uit 2025;
- energielabel B.
Volledige omschrijving
Minder omschrijving
dubbelglas. Op de eerste verdieping bevinden zich drie goed bemeten slaapkamers en via een vaste trap is de zolder bereikbaar, waar eenvoudig een extra slaapkamer, werkruimte of hobbykamer kan worden gerealiseerd.
De zonnige achtertuin met overkapping ligt op het zuiden en biedt volop ruimte om te genieten van lange dagen buiten. Achter in de tuin staat een stenen berging en dankzij de achterom is de tuin ook praktisch in gebruik. Aan de achterzijde is de woning vrij gelegen door de aanwezigheid van parkeerplaatsen en een speeltuin. Met een perceel van circa 154 m2, een prettige indeling en een rustige ligging is dit een woning waar je je direct thuis voelt.
De woning is gelegen in de woonwijk Ballast, een rustige en groene wijk die bekendstaat om haar prettige leefomgeving. Ballast is ruim opgezet, kindvriendelijk en voorzien van diverse speelgelegenheden. Scholen, winkels en sportvoorzieningen bevinden zich op korte afstand, waardoor alle dagelijkse voorzieningen gemakkelijk bereikbaar zijn. De wijk heeft een goede bereikbaarheid en biedt een fijne balans tussen rust en levendigheid.
Coevorden is een karakteristieke vestingstad met een rijke historie en een gezellig centrum. Je vindt er een gevarieerd aanbod aan winkels, horeca en culturele voorzieningen, evenals het kasteel van Coevorden dat het historische hart van de stad vormt. Daarnaast beschikt Coevorden over een treinstation en goede uitvalswegen richting Emmen, Hoogeveen en Duitsland, wat de stad aantrekkelijk maakt voor zowel gezinnen als forenzen. De combinatie van historie, voorzieningen en een groene omgeving maakt Coevorden tot een prettige plek om te wonen.
INDELING
Begane grond: Entree met toilet en trap naar de eerste verdieping. Woonkamer met grote raampartij en laminaatvloer.
Half open keuken voorzien van 4-pits gasfornuis.
Ruime overkapping.
Eerste verdieping: Overloop. Drie slaapkamers voorzien van vaste kasten. Badkamer voorzien van inloopdouche, toilet en wastafelmeubel. Met vaste trap naar..
Zolder met wasmachineaansluiting en vliering.
Extra informatie:
- tuin op het zuiden;
- Intergas cv-ketel uit 2025;
- energielabel B.
Interesse?
Plan een bezichtiging voor Joke Smitstraat 51.
Bel ons op 0524-525252 of WhatsApp via +31 524-525252 voor direct contact. Of laat jouw gegevens achter en wij nemen zo snel mogelijk contact met jou op.









