Grondzeiler 3, Dalen
€ 445.000 k.k.

Jouw makelaar voor deze woning
| 0524-525252 | |
| [email protected] | |
| +31 524-525252 |
Heb je vragen?
Over deze woning
In de geliefde woonwijk Molenakkers staat deze ruime helft van een dubbel woonhuis met aanbouw, gelegen op een royale kavel van 345 m². De woning is in 2004 gebouwd, uitstekend onderhouden en volledig instapklaar. De fraai aangelegde tuin grenst aan een groene strook en zorgt voor veel privacy en een heerlijk vrij gevoel.
De ligging is ideaal: in een rustige, kindvriendelijke en doodlopende straat, direct aan het park en op korte afstand van een speeltuin en het dorpscentrum. De woning biedt verrassend veel ruimte met maar liefst vijf slaapkamers, waarvan één op de begane grond. Hierdoor is de woning niet alleen geschikt voor een groot gezin, maar biedt deze ook mogelijkheden voor bijvoorbeeld een kantoor aan huis of levensloopbestendig wonen. Daarnaast is er de mogelijkheid om op de begane grond een badkamer te realiseren. De woning beschikt over energielabel A+, is goed geïsoleerd en voorzien van alle hedendaagse gemakken.
De tuin ligt op het noordwesten, beschikt over meerdere zitgelegenheden en biedt volop privacy. Achterin staat een houten schuurtje voor extra opslag. Het geheel is met zorg afgewerkt en tot in de puntjes verzorgd. Een van de absolute pluspunten is de ruime en sfeervolle woonkeuken, een heerlijke plek waar koken en samenzijn centraal staan. Kortom, een complete en instapklare gezinswoning op een prachtige plek naast het park.
Het dorp Dalen staat bekend om zijn prettige en gemoedelijke woonomgeving met een actief verenigingsleven en een sterk gevoel van gemeenschap. In het dorp zijn diverse voorzieningen aanwezig, zoals winkels, basisscholen, sportverenigingen en horeca. Daarnaast ligt Dalen midden in een prachtig groen landschap met veel natuur, wandel- en fietsroutes in de directe omgeving. Tegelijkertijd zijn grotere plaatsen zoals Coevorden en Emmen goed bereikbaar, waardoor rust, ruimte en voorzieningen hier perfect samenkomen.
INDELING
Begane grond:
Via de ruime hal met toilet bereik je de lichte L-vormige woonkamer met erker en schuifdeur naar de woonkeuken. De woonkeuken is een fijne plek om te koken en samen te zijn, voorzien van een moderne inbouwkeuken met o.a. een inductiekookplaat met geïntegreerde afzuiging, Quooker, keramisch aanrechtblad en een ruime koelkast. Ook hier geeft een schuifpui direct toegang tot de tuin.
Daarnaast vind je op de begane grond een speel-/slaapkamer en een praktische bijkeuken met aansluitingen, CV-ketel (2019) en bergruimte. Hier bestaat de mogelijkheid om een extra douche te realiseren.
Eerste verdieping:
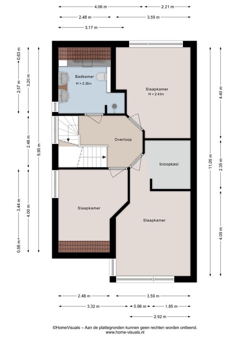
De overloop geeft toegang tot drie grote slaapkamers, waarvan twee met dakkapel. De badkamer is deels vernieuwd in 2024, en uitgerust met een ligbad, dubbele wastafel, inloopdouche met stortdouche en toilet.
Tweede verdieping:
Via een vaste trap bereik je de vierde slaapkamer en een handige zolderberging.
Extra informatie:
- Benedenverdieping is voorzien van vloerverwarming;
- Slaap/speelkamer op de begane grond, mogelijkheid voor een extra badkamer;
- Energielabel A+;
- Keuken en verbouwing benedenverdieping in 2023;
- Hybride CV-ketel 2019;
- 14 zonnepanelen 2021;
- Voortuin opnieuw aangelegd in 2023;
- Achtertuin opnieuw aangelegd in 2025.
Volledige omschrijving
Minder omschrijving
De ligging is ideaal: in een rustige, kindvriendelijke en doodlopende straat, direct aan het park en op korte afstand van een speeltuin en het dorpscentrum. De woning biedt verrassend veel ruimte met maar liefst vijf slaapkamers, waarvan één op de begane grond. Hierdoor is de woning niet alleen geschikt voor een groot gezin, maar biedt deze ook mogelijkheden voor bijvoorbeeld een kantoor aan huis of levensloopbestendig wonen. Daarnaast is er de mogelijkheid om op de begane grond een badkamer te realiseren. De woning beschikt over energielabel A+, is goed geïsoleerd en voorzien van alle hedendaagse gemakken.
De tuin ligt op het noordwesten, beschikt over meerdere zitgelegenheden en biedt volop privacy. Achterin staat een houten schuurtje voor extra opslag. Het geheel is met zorg afgewerkt en tot in de puntjes verzorgd. Een van de absolute pluspunten is de ruime en sfeervolle woonkeuken, een heerlijke plek waar koken en samenzijn centraal staan. Kortom, een complete en instapklare gezinswoning op een prachtige plek naast het park.
Het dorp Dalen staat bekend om zijn prettige en gemoedelijke woonomgeving met een actief verenigingsleven en een sterk gevoel van gemeenschap. In het dorp zijn diverse voorzieningen aanwezig, zoals winkels, basisscholen, sportverenigingen en horeca. Daarnaast ligt Dalen midden in een prachtig groen landschap met veel natuur, wandel- en fietsroutes in de directe omgeving. Tegelijkertijd zijn grotere plaatsen zoals Coevorden en Emmen goed bereikbaar, waardoor rust, ruimte en voorzieningen hier perfect samenkomen.
INDELING
Begane grond:
Via de ruime hal met toilet bereik je de lichte L-vormige woonkamer met erker en schuifdeur naar de woonkeuken. De woonkeuken is een fijne plek om te koken en samen te zijn, voorzien van een moderne inbouwkeuken met o.a. een inductiekookplaat met geïntegreerde afzuiging, Quooker, keramisch aanrechtblad en een ruime koelkast. Ook hier geeft een schuifpui direct toegang tot de tuin.
Daarnaast vind je op de begane grond een speel-/slaapkamer en een praktische bijkeuken met aansluitingen, CV-ketel (2019) en bergruimte. Hier bestaat de mogelijkheid om een extra douche te realiseren.
Eerste verdieping:
De overloop geeft toegang tot drie grote slaapkamers, waarvan twee met dakkapel. De badkamer is deels vernieuwd in 2024, en uitgerust met een ligbad, dubbele wastafel, inloopdouche met stortdouche en toilet.
Tweede verdieping:
Via een vaste trap bereik je de vierde slaapkamer en een handige zolderberging.
Extra informatie:
- Benedenverdieping is voorzien van vloerverwarming;
- Slaap/speelkamer op de begane grond, mogelijkheid voor een extra badkamer;
- Energielabel A+;
- Keuken en verbouwing benedenverdieping in 2023;
- Hybride CV-ketel 2019;
- 14 zonnepanelen 2021;
- Voortuin opnieuw aangelegd in 2023;
- Achtertuin opnieuw aangelegd in 2025.
Vragen over Grondzeiler 3?
Bel ons op 0524-525252 of WhatsApp via +31 524-525252 voor direct contact of maak een afspraak via ons contactformulier.



