Friesestraat 40, Coevorden
€ 849.000 k.k.

Jouw makelaar voor dit object
| 0524-525252 | |
| [email protected] | |
| +31 524-525252 |
Interesse in dit object?
Over dit object
Uniek object voor herontwikkeling: Winkelpand met vergunning voor 6 te realiseren appartementen!
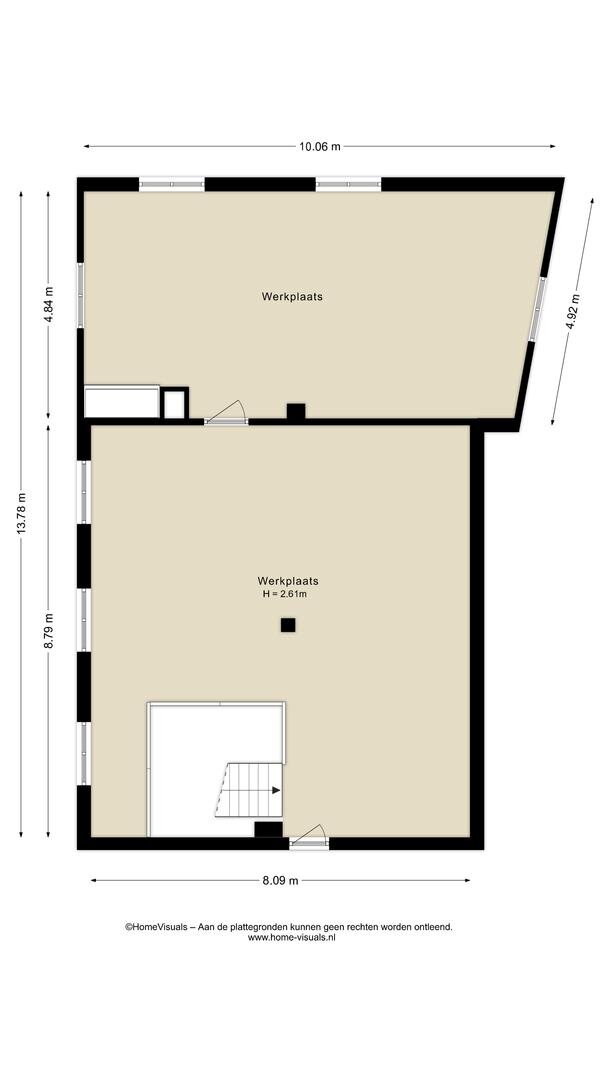
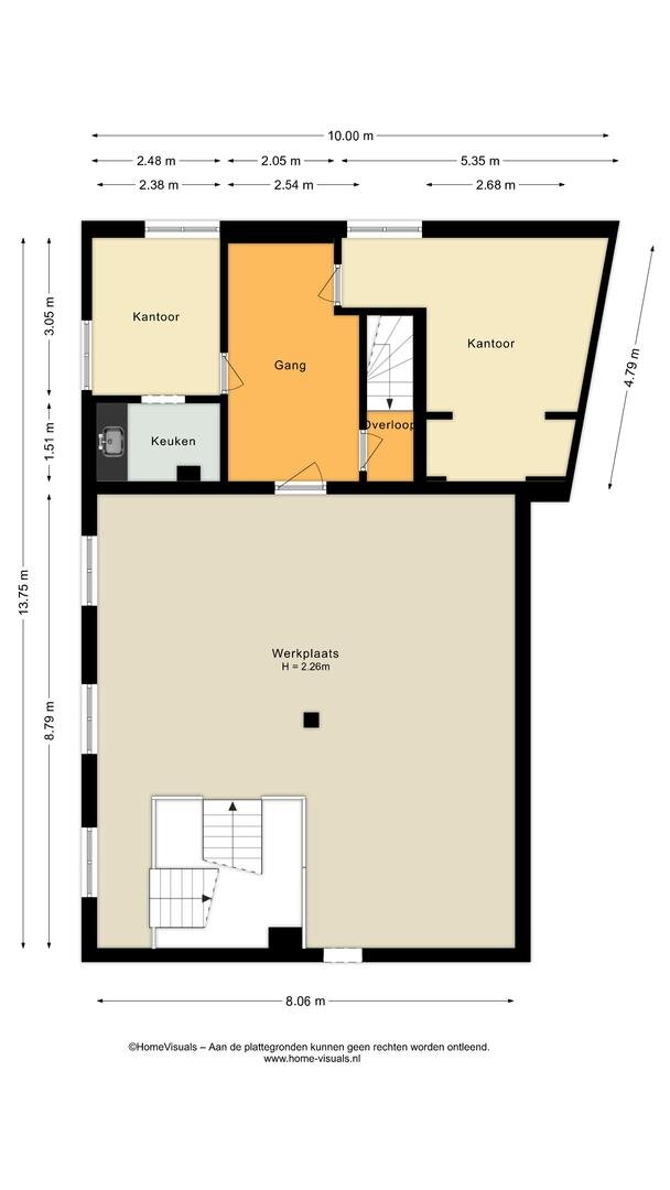
Gelegen op een hoekperceel aan de Friesestraat 40, in het centrum van Coevorden, biedt dit karakteristieke winkelpand een uitstekende gelegenheid voor ondernemers en/of herontwikkeling. Met een totaal vloeroppervlak van 650m², waarvan 270m² als winkelruimte wordt gebruikt, biedt dit pand mogelijkheden voor diverse ondernemingen.
Het pand bestaat uit drie verdiepingen, waarbij de begane grond en een gedeelte van de eerste en tweede verdieping momenteel worden gebruikt als winkelruimte. Het overige deel van de eerste en tweede verdieping kunnen worden omgebouwd tot 6 appartementen (tekeningen op aanvraag).
Met tien goed zichtbare etalageramen is de winkelruimte een eyecatcher voor passerend publiek. De hoekligging van het pand draagt bij aan de uitstekende zichtbaarheid. Bovendien profiteert het van een gunstige locatie middenin centrum van Coevorden, met nabijheid van diverse voorzieningen.
Binnenin het pand is er op de begane grond is een toilet en een magazijn aanwezig. Terwijl het winkelgedeelte in goede conditie verkeert, vereist het woongedeelte nog renovatie en modernisering. Tevens is er een dakterras van 125m² aanwezig.
Daarnaast biedt de locatie gunstige parkeermogelijkheden in de nabije omgeving en profiteert het van de centrale ligging met uitstekende bereikbaarheid via openbaar vervoer.
Mis deze unieke kans niet om een karakteristiek winkelpand te verwerven met mogelijkheden voor zowel commercieel als residentieel gebruik. Neem vandaag nog contact met ons op voor meer informatie of een bezichtiging.
Extra informatie:
- Alle vergunningen aanwezig voor het realiseren van 6 appartementen en een winkel
- Snelle aanvaarding mogelijk
- Centrale ligging
- Karakteristiek object
Volledige omschrijving
Minder omschrijving
Gelegen op een hoekperceel aan de Friesestraat 40, in het centrum van Coevorden, biedt dit karakteristieke winkelpand een uitstekende gelegenheid voor ondernemers en/of herontwikkeling. Met een totaal vloeroppervlak van 650m², waarvan 270m² als winkelruimte wordt gebruikt, biedt dit pand mogelijkheden voor diverse ondernemingen.
Het pand bestaat uit drie verdiepingen, waarbij de begane grond en een gedeelte van de eerste en tweede verdieping momenteel worden gebruikt als winkelruimte. Het overige deel van de eerste en tweede verdieping kunnen worden omgebouwd tot 6 appartementen (tekeningen op aanvraag).
Met tien goed zichtbare etalageramen is de winkelruimte een eyecatcher voor passerend publiek. De hoekligging van het pand draagt bij aan de uitstekende zichtbaarheid. Bovendien profiteert het van een gunstige locatie middenin centrum van Coevorden, met nabijheid van diverse voorzieningen.
Binnenin het pand is er op de begane grond is een toilet en een magazijn aanwezig. Terwijl het winkelgedeelte in goede conditie verkeert, vereist het woongedeelte nog renovatie en modernisering. Tevens is er een dakterras van 125m² aanwezig.
Daarnaast biedt de locatie gunstige parkeermogelijkheden in de nabije omgeving en profiteert het van de centrale ligging met uitstekende bereikbaarheid via openbaar vervoer.
Mis deze unieke kans niet om een karakteristiek winkelpand te verwerven met mogelijkheden voor zowel commercieel als residentieel gebruik. Neem vandaag nog contact met ons op voor meer informatie of een bezichtiging.
Extra informatie:
- Alle vergunningen aanwezig voor het realiseren van 6 appartementen en een winkel
- Snelle aanvaarding mogelijk
- Centrale ligging
- Karakteristiek object
Interesse?
Plan een bezichtiging voor Friesestraat 40.
Bel ons op 0524-525252 of WhatsApp via +31 524-525252 voor direct contact. Of laat jouw gegevens achter en wij nemen zo snel mogelijk contact met jou op.










