Esweg 3, Zwinderen
€ 425.000 k.k.

Jouw makelaar voor deze woning
| 0524-525252 | |
| [email protected] | |
| +31 524-525252 |
Interesse in deze woning?
Over deze woning
Op een fijne en rustige locatie staat deze vrijstaande woning in het bosrijke Zwinderen. De woning is gebouwd in 1969, heeft een woonoppervlakte van circa 104 m² en staat op een royaal perceel van 834 m², waardoor u hier volop ruimte en privacy ervaart. Dankzij de 10 zonnepanelen is er bovendien al een mooie stap gezet richting energiezuiniger wonen.
Binnen beschikt de woning over vier kamers, waaronder drie slaapkamers. Extra prettig is dat er op de begane grond al een slaapkamer en badkamer aanwezig zijn, waardoor gelijkvloers wonen hier goed mogelijk is. Op de verdieping bevinden zich nog twee slaapkamers, ideaal voor een gezin, logees of bijvoorbeeld een werk- of hobbyruimte. Rondom de woning ligt een fijne tuin waar u op elk moment van de dag kunt genieten van het buitenleven, met alle mogelijkheden om te ontspannen of te tuinieren.
Zwinderen is een sfeervol dorp in Drenthe dat bekend staat om zijn landelijke karakter en groene omgeving. Het is een plek waar rust en ruimte centraal staan, met prachtige wandel- en fietsroutes door bossen en velden in de directe omgeving. Tegelijkertijd liggen omliggende dorpen en voorzieningen op korte afstand, waardoor u hier comfortabel woont.
INDELING
Begane grond: Hal/entree met toilet, trap naar de eerste verdieping en badkamer voorzien van een inloopdouche en wastafel. Woonkamer met vaste kast en deur naar de tuin. dichte keuken voorzien van vaatwasser, gaskookplaat, koelkast en wasmachineaansluiting. Aangebouwde slaapkamer (volledig geïsoleerd).
Berging.
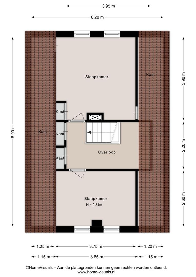
Eerste verdieping: overloop. Twee slaapkamers
Extra informatie:
- woning heeft gedeeltelijk dak-, muur- en glasisolatie;
- energielabel ;
- 10 zonnepanelen in eigendom uit 2020;
- Intergas cv ketel uit 2021;
- slapen en baden op de begane grond;
- ruim perceel van 834 m²;
- aangebouwde slaapkamer, volledig geïsoleerd.
Volledige omschrijving
Minder omschrijving
Binnen beschikt de woning over vier kamers, waaronder drie slaapkamers. Extra prettig is dat er op de begane grond al een slaapkamer en badkamer aanwezig zijn, waardoor gelijkvloers wonen hier goed mogelijk is. Op de verdieping bevinden zich nog twee slaapkamers, ideaal voor een gezin, logees of bijvoorbeeld een werk- of hobbyruimte. Rondom de woning ligt een fijne tuin waar u op elk moment van de dag kunt genieten van het buitenleven, met alle mogelijkheden om te ontspannen of te tuinieren.
Zwinderen is een sfeervol dorp in Drenthe dat bekend staat om zijn landelijke karakter en groene omgeving. Het is een plek waar rust en ruimte centraal staan, met prachtige wandel- en fietsroutes door bossen en velden in de directe omgeving. Tegelijkertijd liggen omliggende dorpen en voorzieningen op korte afstand, waardoor u hier comfortabel woont.
INDELING
Begane grond: Hal/entree met toilet, trap naar de eerste verdieping en badkamer voorzien van een inloopdouche en wastafel. Woonkamer met vaste kast en deur naar de tuin. dichte keuken voorzien van vaatwasser, gaskookplaat, koelkast en wasmachineaansluiting. Aangebouwde slaapkamer (volledig geïsoleerd).
Berging.
Eerste verdieping: overloop. Twee slaapkamers
Extra informatie:
- woning heeft gedeeltelijk dak-, muur- en glasisolatie;
- energielabel ;
- 10 zonnepanelen in eigendom uit 2020;
- Intergas cv ketel uit 2021;
- slapen en baden op de begane grond;
- ruim perceel van 834 m²;
- aangebouwde slaapkamer, volledig geïsoleerd.
Interesse?
Plan een bezichtiging voor Esweg 3.
Bel ons op 0524-525252 of WhatsApp via +31 524-525252 voor direct contact. Of laat jouw gegevens achter en wij nemen zo snel mogelijk contact met jou op.






