Bonte Kraai 16, Emmen
€ 320.000 k.k.

Jouw makelaar voor deze woning
| 0524-525252 | |
| [email protected] | |
| +31 524-525252 |
Heb je vragen?
Over deze woning
*Er is een Open Huis gepland op donderdag 5 juni tussen 15.00 en 16.00 uur*
Deze twee-onder-een-kapwoning aan de Bonte Kraai in Emmen biedt je ruimte, comfort én een heerlijke tuin, gelegen in de geliefde woonwijk Rietlanden.
Binnen stap je in een royale en lichte woonkamer met schuifpui naar de achtertuin, die zorgt voor een fijne verbinding tussen binnen en buiten. De open indeling met keuken en woonkamer maakt het tot een prettige leefruimte waar je helemaal je eigen stijl kunt creëren. De woning beschikt over vier slaapkamers, verdeeld over de eerste en tweede verdieping. Bovendien is er op zolder een tweede badkamer aanwezig, wat zorgt voor extra comfort en gemak.
Met een woonoppervlakte van 139 m² en een perceel van 227 m² is er voldoende leefruimte, zowel binnen als buiten. De achtertuin biedt verrassend veel privacy en is ideaal voor wie houdt van rust, groen en buitenleven. De aangebouwde berging met wasmachine-aansluiting zorgt daarnaast voor praktische extra ruimte.
De wijk Rietlanden staat bekend om zijn prettige woonklimaat en goede voorzieningen. In de directe omgeving vind je supermarkten, scholen, sportclubs en de Rietplas – een prachtig recreatiegebied waar je kunt wandelen, fietsen of relaxen aan het water. Ook het centrum van Emmen ligt op korte afstand en biedt een ruim aanbod aan winkels, horeca, cultuur én attracties zoals Wildlands en het Atlas Theater.
INDELING
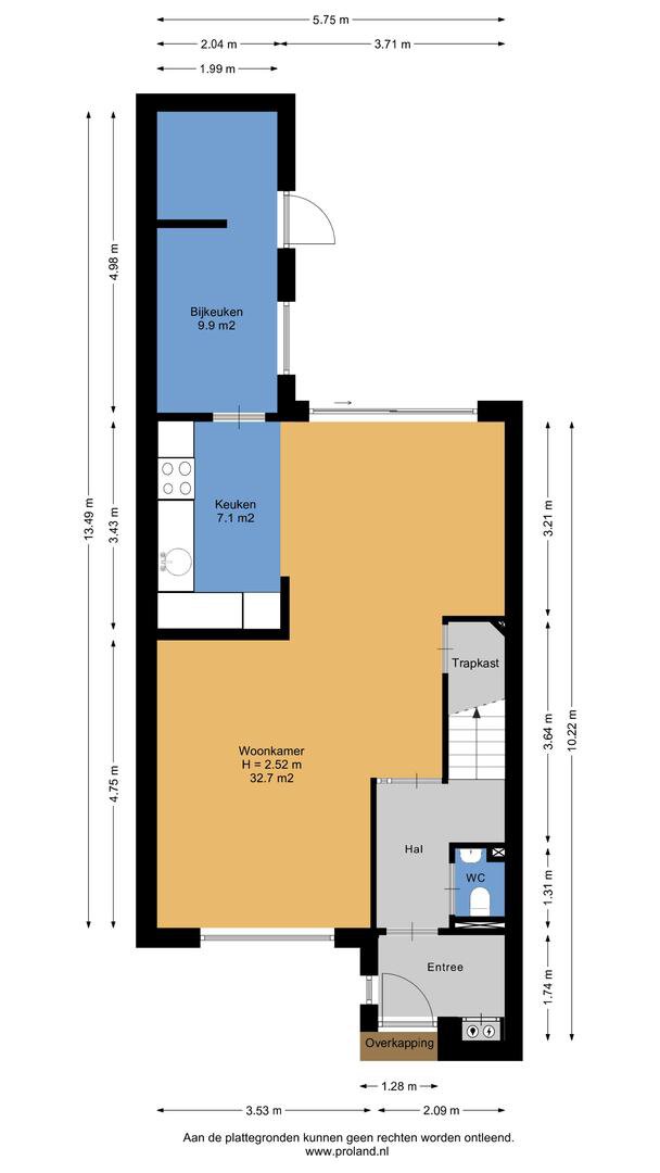
Begane grond: Entree met toilet. Woonkamer met schuifpui naar de tuin. Half open keuken voorzien van inbouwapparatuur. Berging voorzien van wasmachineaansluiting en deur naar de tuin.
Eerste verdieping: Overloop. Drie ruime slaapkamers. Badkamer voorzien van dubbele wastafel, toilet en ligbad.
Tweede verdieping: Overloop. Vierde slaapkamer. Berging. Badkamer voorzien van wastafel en douche.
Extra informatie:
- projectnotaris Veen en Veste Coevorden;
- voormalig huurwoning;
- zelfbewoningsplicht;
- voldoende parkeergelegenheid.
Disclaimer:
Venhorst Makelaardij BV streeft er naar de informatie zo actueel en nauwkeurig mogelijk te houden. Hoewel de informatie met de grootst mogelijke zorgvuldigheid is samengesteld, aanvaarden wij geen enkele aansprakelijkheid ten aanzien van enige onvolledigheid, onjuistheid of anderszins, dan wel de gevolgen daarvan. De opgegeven oppervlakten en/of maten zijn indicatief. De NVM-voorwaarden zijn van toepassing.
Volledige omschrijving
Minder omschrijving
Deze twee-onder-een-kapwoning aan de Bonte Kraai in Emmen biedt je ruimte, comfort én een heerlijke tuin, gelegen in de geliefde woonwijk Rietlanden.
Binnen stap je in een royale en lichte woonkamer met schuifpui naar de achtertuin, die zorgt voor een fijne verbinding tussen binnen en buiten. De open indeling met keuken en woonkamer maakt het tot een prettige leefruimte waar je helemaal je eigen stijl kunt creëren. De woning beschikt over vier slaapkamers, verdeeld over de eerste en tweede verdieping. Bovendien is er op zolder een tweede badkamer aanwezig, wat zorgt voor extra comfort en gemak.
Met een woonoppervlakte van 139 m² en een perceel van 227 m² is er voldoende leefruimte, zowel binnen als buiten. De achtertuin biedt verrassend veel privacy en is ideaal voor wie houdt van rust, groen en buitenleven. De aangebouwde berging met wasmachine-aansluiting zorgt daarnaast voor praktische extra ruimte.
De wijk Rietlanden staat bekend om zijn prettige woonklimaat en goede voorzieningen. In de directe omgeving vind je supermarkten, scholen, sportclubs en de Rietplas – een prachtig recreatiegebied waar je kunt wandelen, fietsen of relaxen aan het water. Ook het centrum van Emmen ligt op korte afstand en biedt een ruim aanbod aan winkels, horeca, cultuur én attracties zoals Wildlands en het Atlas Theater.
INDELING
Begane grond: Entree met toilet. Woonkamer met schuifpui naar de tuin. Half open keuken voorzien van inbouwapparatuur. Berging voorzien van wasmachineaansluiting en deur naar de tuin.
Eerste verdieping: Overloop. Drie ruime slaapkamers. Badkamer voorzien van dubbele wastafel, toilet en ligbad.
Tweede verdieping: Overloop. Vierde slaapkamer. Berging. Badkamer voorzien van wastafel en douche.
Extra informatie:
- projectnotaris Veen en Veste Coevorden;
- voormalig huurwoning;
- zelfbewoningsplicht;
- voldoende parkeergelegenheid.
Disclaimer:
Venhorst Makelaardij BV streeft er naar de informatie zo actueel en nauwkeurig mogelijk te houden. Hoewel de informatie met de grootst mogelijke zorgvuldigheid is samengesteld, aanvaarden wij geen enkele aansprakelijkheid ten aanzien van enige onvolledigheid, onjuistheid of anderszins, dan wel de gevolgen daarvan. De opgegeven oppervlakten en/of maten zijn indicatief. De NVM-voorwaarden zijn van toepassing.
Vragen over Bonte Kraai 16?
Bel ons op 0524-525252 of WhatsApp via +31 524-525252 voor direct contact of maak een afspraak via ons contactformulier.


