Aleida Kramersingel 19, Coevorden
€ 239.000 k.k.

Jouw makelaar voor deze woning
| 0524-525252 | |
| [email protected] | |
| +31 524-525252 |
Interesse in deze woning?
Over deze woning
In het hart van Coevorden staat deze karakteristieke helft van een dubbele stadswoning met met twee wooneenheden binnen één woning. De woning is gelegen op een perceel van 71 m² en biedt een prachtig vrij uitzicht op het Kasteel en kasteelpark Weeshuisweide, wat zorgt voor een bijzonder en open gevoel midden in de binnenstad.
De ligging is ideaal. Vanuit de woning wandelt u zo naar de gezellige markt, diverse winkels, horecagelegenheden en het station. Alles wat het dagelijkse leven comfortabel maakt, bevindt zich op korte afstand. Coevorden is een sfeervolle vestingstad met een rijke historie, bekend om haar karakteristieke straatjes, het kasteel en de gemoedelijke sfeer. Tegelijkertijd beschikt de stad over goede voorzieningen en een uitstekende bereikbaarheid, waardoor het een aantrekkelijke plek is om te wonen én te investeren.
De woning zelf dateert uit circa 1900 en het authentieke karakter behouden is gebleven. Het geheel biedt veel mogelijkheden en kan zowel als woonhuis worden gebruikt als voor verhuurdoeleinden. Dankzij de aanwezigheid van een gastenverblijf is dubbele bewoning goed mogelijk, wat het object interessant maakt voor bijvoorbeeld verhuur, praktijk aan huis of kantoorruimte.
Het betreft een multifunctioneel pand dat naar eigen wens en inzicht kan worden gemoderniseerd. De woning dient opgeknapt te worden, maar biedt juist daardoor volop kansen om het geheel naar eigen smaak en gebruiksdoel in te richten. Een unieke kans voor wie op zoek is naar een karakteristiek object met potentie op een toplocatie in Coevorden.
INDELING:
Onderverdieping; via luik en trap bereikbare provisiekelder
Begane grond: Entree met provisiekast. Woonkamer met veel lichtinval. Dichte keuken voorzien van koelkast, oven, inductiekookplaat, en afzuigkap. Badkamer met toilet, douche en wastafel. Slaapkamer of eetkamer.
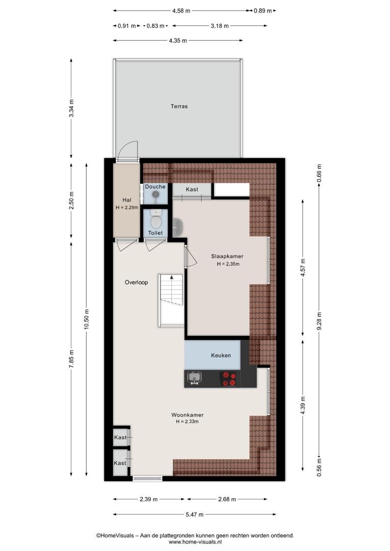
Eerste verdieping: Overloop met hal naar het dakterras. Toilet. Douche. Open leefruimte met open keuken voorzien van inductiekookplaat en vaste kasten. Ruime slaapkamer met vaste kasten.
Extra informatie:
- energielabel E;
- cv ketel uit 2014;
- dakterras op het zuiden gelegen;
- ideale ligging.
Volledige omschrijving
Minder omschrijving
De ligging is ideaal. Vanuit de woning wandelt u zo naar de gezellige markt, diverse winkels, horecagelegenheden en het station. Alles wat het dagelijkse leven comfortabel maakt, bevindt zich op korte afstand. Coevorden is een sfeervolle vestingstad met een rijke historie, bekend om haar karakteristieke straatjes, het kasteel en de gemoedelijke sfeer. Tegelijkertijd beschikt de stad over goede voorzieningen en een uitstekende bereikbaarheid, waardoor het een aantrekkelijke plek is om te wonen én te investeren.
De woning zelf dateert uit circa 1900 en het authentieke karakter behouden is gebleven. Het geheel biedt veel mogelijkheden en kan zowel als woonhuis worden gebruikt als voor verhuurdoeleinden. Dankzij de aanwezigheid van een gastenverblijf is dubbele bewoning goed mogelijk, wat het object interessant maakt voor bijvoorbeeld verhuur, praktijk aan huis of kantoorruimte.
Het betreft een multifunctioneel pand dat naar eigen wens en inzicht kan worden gemoderniseerd. De woning dient opgeknapt te worden, maar biedt juist daardoor volop kansen om het geheel naar eigen smaak en gebruiksdoel in te richten. Een unieke kans voor wie op zoek is naar een karakteristiek object met potentie op een toplocatie in Coevorden.
INDELING:
Onderverdieping; via luik en trap bereikbare provisiekelder
Begane grond: Entree met provisiekast. Woonkamer met veel lichtinval. Dichte keuken voorzien van koelkast, oven, inductiekookplaat, en afzuigkap. Badkamer met toilet, douche en wastafel. Slaapkamer of eetkamer.
Eerste verdieping: Overloop met hal naar het dakterras. Toilet. Douche. Open leefruimte met open keuken voorzien van inductiekookplaat en vaste kasten. Ruime slaapkamer met vaste kasten.
Extra informatie:
- energielabel E;
- cv ketel uit 2014;
- dakterras op het zuiden gelegen;
- ideale ligging.
Interesse?
Plan een bezichtiging voor Aleida Kramersingel 19.
Bel ons op 0524-525252 of WhatsApp via +31 524-525252 voor direct contact. Of laat jouw gegevens achter en wij nemen zo snel mogelijk contact met jou op.

