Verbindingsweg 2, Dalen
€ 589.500 k.k.

Jouw makelaar voor deze woning
| 0524-525252 | |
| [email protected] | |
| +31 524-525252 |
Heb je vragen?
Over deze woning
Aan de Verbindingsweg in Dalen staat deze verzorgde vrijstaande woning die dankzij de royale aanbouw, de garage en de dubbele carport bijzonder veel ruimte en mogelijkheden biedt. Met een woonoppervlakte van 149 vierkante meter en drie comfortabele slaapkamers is dit een huis dat direct prettig aanvoelt. De woonkamer heeft een warme en uitnodigende sfeer, mede dankzij de mooie gashaard en de parketvloer die het geheel een tijdloze uitstraling geven.
De woning is in 1979 gebouwd en door de jaren heen netjes onderhouden, waardoor het geheel een verzorgde indruk maakt. Met twintig zonnepanelen, een warmtepomp en energielabel C is het bovendien een woning die al goed is voorbereid op de toekomst.
Rondom de woning ligt een ruime tuin op een kavel van 737 vierkante meter eigen grond. Hier is alle ruimte om buiten te genieten, met twee houten tuinhuisjes voor opslag of hobby’s en voldoende plek om te ontspannen. Parkeren kan op eigen terrein en onder de carport is plek voor twee auto’s. De ligging aan een rustige weg in een woonwijk van Dalen zorgt voor een fijne en veilige woonomgeving.
Dalen zelf is een gezellig en levendig dorp met een sfeervol centrum, diverse winkels, scholen en horecagelegenheden. De omgeving staat bekend om het groene landschap, de mooie fiets- en wandelroutes en de vriendelijke dorpssfeer. Het is een plek waar je gemakkelijk tot rust komt en waar voorzieningen altijd binnen handbereik zijn. Deze woning combineert ruimte, comfort en een prettige woonomgeving tot een aantrekkelijk geheel voor wie op zoek is naar een fijne nieuwe thuisbasis.
INDELING
Begane grond: Entree voorzien van vloerverwarming met toilet en trap naar de eerste verdieping. Woonkamer voorzien van eiken houten parketvloer en te midden in de ruimte een mooie gashaard. Dichte keuken voorzien met inbouwapparatuur, o.a. vaatwasser, koelkast, inductiekookplaat en afzuigkap. Kantoor/slaapkamer voorzien van vaste kast. Bijkeuken voorzien van wasmachineaansluiting, cv kast en warmtepomp. Garage met vliering.
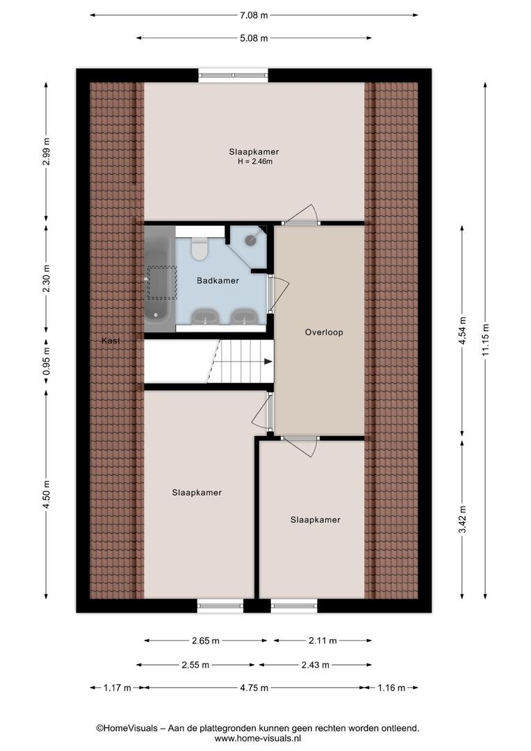
Eerste verdieping: Overloop. Drie ruime slaapkamers waarvan één voorzien van airco en rolluiken. Badkamer voorzien van vloerverwarming, douche, dubbele wastafel, designradiator, toilet en ligbad.
Zolder: bergruimte.
Extra informatie:
- energielabel C (opgenomen in 2020);
- tuin op het zuidwesten;
- 20 zonnepanelen (2 op uitbouw) en hybride warmtepomp uit 2022;
- twee slaapkamers en verschillende ramen op de begane grond voorzien van screens;
- eerste verdieping voorzien van kunststof kozijnen;
- cv ketel uit 2016;
- woning beschikt over HR++ beglazing.
Volledige omschrijving
Minder omschrijving
De woning is in 1979 gebouwd en door de jaren heen netjes onderhouden, waardoor het geheel een verzorgde indruk maakt. Met twintig zonnepanelen, een warmtepomp en energielabel C is het bovendien een woning die al goed is voorbereid op de toekomst.
Rondom de woning ligt een ruime tuin op een kavel van 737 vierkante meter eigen grond. Hier is alle ruimte om buiten te genieten, met twee houten tuinhuisjes voor opslag of hobby’s en voldoende plek om te ontspannen. Parkeren kan op eigen terrein en onder de carport is plek voor twee auto’s. De ligging aan een rustige weg in een woonwijk van Dalen zorgt voor een fijne en veilige woonomgeving.
Dalen zelf is een gezellig en levendig dorp met een sfeervol centrum, diverse winkels, scholen en horecagelegenheden. De omgeving staat bekend om het groene landschap, de mooie fiets- en wandelroutes en de vriendelijke dorpssfeer. Het is een plek waar je gemakkelijk tot rust komt en waar voorzieningen altijd binnen handbereik zijn. Deze woning combineert ruimte, comfort en een prettige woonomgeving tot een aantrekkelijk geheel voor wie op zoek is naar een fijne nieuwe thuisbasis.
INDELING
Begane grond: Entree voorzien van vloerverwarming met toilet en trap naar de eerste verdieping. Woonkamer voorzien van eiken houten parketvloer en te midden in de ruimte een mooie gashaard. Dichte keuken voorzien met inbouwapparatuur, o.a. vaatwasser, koelkast, inductiekookplaat en afzuigkap. Kantoor/slaapkamer voorzien van vaste kast. Bijkeuken voorzien van wasmachineaansluiting, cv kast en warmtepomp. Garage met vliering.
Eerste verdieping: Overloop. Drie ruime slaapkamers waarvan één voorzien van airco en rolluiken. Badkamer voorzien van vloerverwarming, douche, dubbele wastafel, designradiator, toilet en ligbad.
Zolder: bergruimte.
Extra informatie:
- energielabel C (opgenomen in 2020);
- tuin op het zuidwesten;
- 20 zonnepanelen (2 op uitbouw) en hybride warmtepomp uit 2022;
- twee slaapkamers en verschillende ramen op de begane grond voorzien van screens;
- eerste verdieping voorzien van kunststof kozijnen;
- cv ketel uit 2016;
- woning beschikt over HR++ beglazing.
Vragen over Verbindingsweg 2?
Bel ons op 0524-525252 of WhatsApp via +31 524-525252 voor direct contact of maak een afspraak via ons contactformulier.







