Secr Bruintjesstraat 16, Coevorden
€ 269.000 k.k.

Jouw makelaar voor deze woning
| 0524-525252 | |
| [email protected] | |
| +31 524-525252 |
Heb je vragen?
Over deze woning
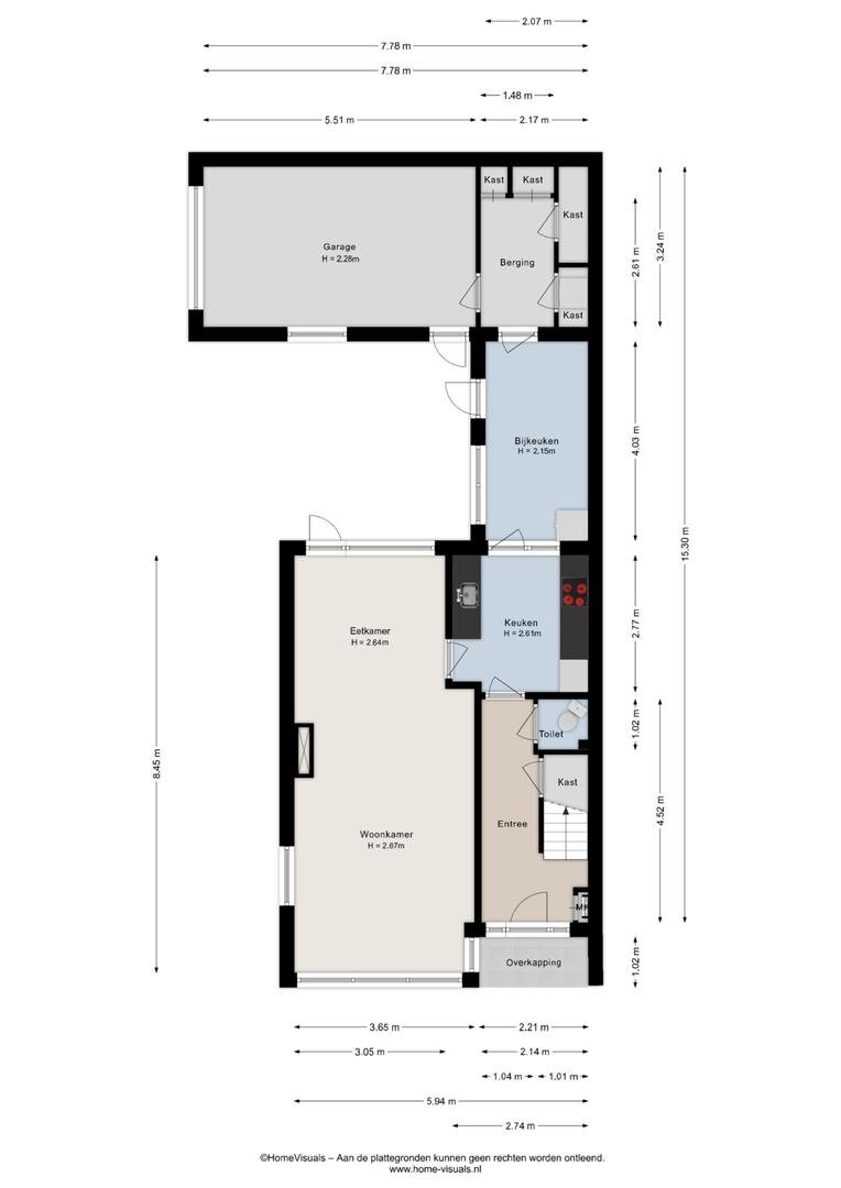
Aan de Secretaris Bruintjesstraat in Coevorden staat deze ruime hoekwoning uit 1963, gelegen op een perceel van 280 m² eigen grond met een voortuin, zijtuin en achtertuin met achterom. De woning beschikt over een eigen oprit en een stenen garage, waardoor parkeren op eigen terrein mogelijk is. Met vier slaapkamers en een woonoppervlakte van 121 m² maakt dit een praktische woning met volop ruimte en mogelijkheden om alles naar eigen wens te maken.
De woning is gelegen in woonwijk De Loo. Dit is een groene woonomgeving met diverse voorzieningen in de nabijheid. Scholen, winkels, sportvoorzieningen en uitvalswegen zijn goed bereikbaar, wat bijdraagt aan een prettige woonlocatie. Coevorden is een karaktervolle stad met een sfeervol centrum. Het aanbod aan winkels, horeca en voorzieningen is gevarieerd en compleet. Daarnaast zijn zowel de uitvalswegen als het treinstation goed bereikbaar, waardoor omliggende plaatsen eenvoudig te bereiken zijn.
Deze woning combineert ruimte en comfort met volop mogelijkheden voor de toekomst.
INDELING:
Onderverdieping; Kelderkast.
Begane grond: Hal/entree met toilet. Woonkamer, met veel lichtinval, voorzien van een laminaatvloer en erker. Dichte keuken met apparatuur: keramische kookplaat, vaatwasser, afzuigkap, koelkast en oven. Bijkeuken voorzien van wasmachineaansluiting en geïsoleerde wanden en dak. Deze biedt toegang tot de berging met veel opbergruimte en stenen garage.
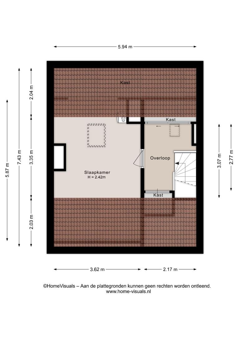
Eerste verdieping: Overloop met toilet. Drie slaapkamers voorzien van vloerbedekking en allen met vaste kasten. Eén slaapkamer met balkon. Hoofdslaapkamer voorzien van rolluik. Badkamer met inloopdouche en wastafel met meubel. Via vaste trap naar...
Tweede verdieping: Overloop. Bergruimte. Eventueel een extra slaapkamer voorzien van een dakraam. CV-ketel.
Extra informatie:
- verwarmen geschiedt middels radiatoren;
- woning heeft dakisolatie, muurisolatie en glasisolatie. Voorzien van HR++, grote bovenraam HR;
- energielabel C;
- CV-ketel 2024 Remeha;
- 2x rolluik aan de achterzijde van de woning (beneden en op de eerste verdieping);
- eigen oprit + garage.
Volledige omschrijving
Minder omschrijving
De woning is gelegen in woonwijk De Loo. Dit is een groene woonomgeving met diverse voorzieningen in de nabijheid. Scholen, winkels, sportvoorzieningen en uitvalswegen zijn goed bereikbaar, wat bijdraagt aan een prettige woonlocatie. Coevorden is een karaktervolle stad met een sfeervol centrum. Het aanbod aan winkels, horeca en voorzieningen is gevarieerd en compleet. Daarnaast zijn zowel de uitvalswegen als het treinstation goed bereikbaar, waardoor omliggende plaatsen eenvoudig te bereiken zijn.
Deze woning combineert ruimte en comfort met volop mogelijkheden voor de toekomst.
INDELING:
Onderverdieping; Kelderkast.
Begane grond: Hal/entree met toilet. Woonkamer, met veel lichtinval, voorzien van een laminaatvloer en erker. Dichte keuken met apparatuur: keramische kookplaat, vaatwasser, afzuigkap, koelkast en oven. Bijkeuken voorzien van wasmachineaansluiting en geïsoleerde wanden en dak. Deze biedt toegang tot de berging met veel opbergruimte en stenen garage.
Eerste verdieping: Overloop met toilet. Drie slaapkamers voorzien van vloerbedekking en allen met vaste kasten. Eén slaapkamer met balkon. Hoofdslaapkamer voorzien van rolluik. Badkamer met inloopdouche en wastafel met meubel. Via vaste trap naar...
Tweede verdieping: Overloop. Bergruimte. Eventueel een extra slaapkamer voorzien van een dakraam. CV-ketel.
Extra informatie:
- verwarmen geschiedt middels radiatoren;
- woning heeft dakisolatie, muurisolatie en glasisolatie. Voorzien van HR++, grote bovenraam HR;
- energielabel C;
- CV-ketel 2024 Remeha;
- 2x rolluik aan de achterzijde van de woning (beneden en op de eerste verdieping);
- eigen oprit + garage.
Vragen over Secr Bruintjesstraat 16?
Bel ons op 0524-525252 of WhatsApp via +31 524-525252 voor direct contact of maak een afspraak via ons contactformulier.






