Meester Cassastraat 58, Dalen
€ 275.000 k.k.

Jouw makelaar voor deze woning
| 0524-525252 | |
| [email protected] | |
| +31 524-525252 |
Interesse in deze woning?
Over deze woning
Nabij het gezellige centrum van Dalen, op loopafstand van de supermarkt en de basisschool, ligt deze verzorgde tussenwoning. De ligging is ideaal: met het treinstation, sportvoorzieningen en alle dagelijkse gemakken binnen handbereik, woon je hier rustig én centraal. De woning, gebouwd in 1973, is door de jaren heen met zorg gemoderniseerd en staat op een perceel van 169 m² eigen grond. Op de verdieping bevinden zich maar liefst vier slaapkamers, perfect voor een gezin of voor wie graag een extra werk- of hobbykamer wil.
De tuin biedt volop privacy en is bereikbaar via een achterom. Het houten tuinhuis zorgt voor extra bergruimte voor fietsen, tuingereedschap of andere spullen.
Dalen zelf is een levendig zanddorp in het prachtige Drentse landschap, met een actief verenigingsleven en uitstekende voorzieningen. Middelbaar onderwijs vind je in Coevorden, op slechts een kwartier fietsen, en voor HBO-opleidingen ben je met een korte treinrit in Emmen. Dankzij de gunstige ligging ten opzichte van de N34 en A37 zijn ook steden als Zwolle, Assen en Groningen verrassend dichtbij.
Kortom: een nette, complete woning op een geliefde locatie. Een ideale plek voor wie rustig wil wonen met alle voorzieningen binnen handbereik.
INDELING:
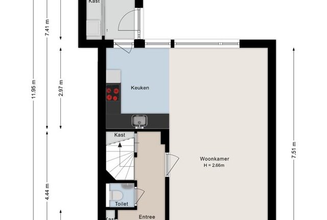
Begane grond: hal/entree met toilet en trapkast. Woonkamer voorzien van een laminaatvloer. Halfopen keuken met gastoestel en afzuigkap, koelkast, oven/grill en vaatwasser.. Bijkeuken met wasmachineaansluiting en vaste kastenwand.
Eerste verdieping: Vier slaapkamers, allen voorzien van een laminaatvloer en één van airconditioning. Overloop. Badkamer met douche en wastafel. Via vlizotrap naar..
Zolder met cv-ketel.
Extra informatie:
- verwarmen geschiedt middels radiatoren en airconditioning;
- woning heeft dak- en glasisolatie;
- energielabel C;
- kunststof kozijnen;
- berging bij keuken aangetrokken in 2022;
- houten tuinhuis in 2023 geplaatst;
- 4 slaapkamers.
Volledige omschrijving
Minder omschrijving
De tuin biedt volop privacy en is bereikbaar via een achterom. Het houten tuinhuis zorgt voor extra bergruimte voor fietsen, tuingereedschap of andere spullen.
Dalen zelf is een levendig zanddorp in het prachtige Drentse landschap, met een actief verenigingsleven en uitstekende voorzieningen. Middelbaar onderwijs vind je in Coevorden, op slechts een kwartier fietsen, en voor HBO-opleidingen ben je met een korte treinrit in Emmen. Dankzij de gunstige ligging ten opzichte van de N34 en A37 zijn ook steden als Zwolle, Assen en Groningen verrassend dichtbij.
Kortom: een nette, complete woning op een geliefde locatie. Een ideale plek voor wie rustig wil wonen met alle voorzieningen binnen handbereik.
INDELING:
Begane grond: hal/entree met toilet en trapkast. Woonkamer voorzien van een laminaatvloer. Halfopen keuken met gastoestel en afzuigkap, koelkast, oven/grill en vaatwasser.. Bijkeuken met wasmachineaansluiting en vaste kastenwand.
Eerste verdieping: Vier slaapkamers, allen voorzien van een laminaatvloer en één van airconditioning. Overloop. Badkamer met douche en wastafel. Via vlizotrap naar..
Zolder met cv-ketel.
Extra informatie:
- verwarmen geschiedt middels radiatoren en airconditioning;
- woning heeft dak- en glasisolatie;
- energielabel C;
- kunststof kozijnen;
- berging bij keuken aangetrokken in 2022;
- houten tuinhuis in 2023 geplaatst;
- 4 slaapkamers.
Interesse?
Plan een bezichtiging voor Meester Cassastraat 58.
Bel ons op 0524-525252 of WhatsApp via +31 524-525252 voor direct contact. Of laat jouw gegevens achter en wij nemen zo snel mogelijk contact met jou op.








