David Krammerstraat 119, Coevorden
€ 250.000 k.k.

Jouw makelaar voor deze woning
| 0524-525252 | |
| [email protected] | |
| +31 524-525252 |
Interesse in deze woning?
Over deze woning
In de rustige en kindvriendelijke wijk De Loo in Coevorden staat deze fijne tussenwoning uit 1963 met een prettige en praktische indeling. De woning heeft een woonoppervlakte van 127 m² en is uitgebouwd waardoor een een bijkeuken en schuur zijn ontstaan. Met vier slaapkamers is dit huis zeer geschikt voor een gezin, maar ook ideaal voor wie behoefte heeft aan een werk-, hobby- of logeerkamer. De indeling biedt volop mogelijkheden om de ruimtes naar eigen wens in te richten.
De woning staat op een perceel van 205 m² eigen grond en beschikt over een onderhoudsvriendelijke tuin met achterom. Dit maakt het buitenleven aangenaam, zonder dat er veel tijd nodig is voor tuinonderhoud.
De ligging in De Loo is bijzonder prettig. Het is een groene woonwijk met veel voorzieningen zoals scholen, sportverenigingen en winkels zich in de directe nabijheid bevinden. Coevorden is een stad met een rijke historie en een gezellig centrum. Er is een ruim aanbod aan winkels, horecagelegenheden en culturele voorzieningen. Daarnaast zijn uitvalswegen en het treinstation goed bereikbaar, wat zorgt voor een goede verbinding met omliggende plaatsen.
Deze woning biedt een fijne combinatie van ruimte, comfort en een aantrekkelijke woonomgeving.
INDELING:
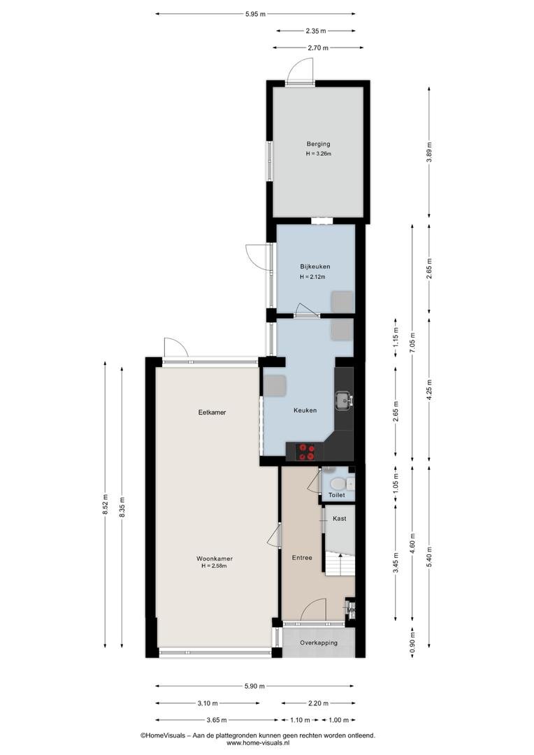
Begane grond: hal/entree en toilet. Woonkamer voorzien van een laminaatvloer en erker. Halfopen keuken met inbouwapparatuur: inductiekookplaat met afzuigkap, oven, vaatwasser en koelkast. Bijkeuken.
Eerste verdieping: overloop met wasmachineaansluiting. Drie slaapkamer, allen voorzien van een laminaatvloer en waarvan één met toegang tot het balkon. Badkamer met douche en wastafel met meubel. Via vaste trap naar...
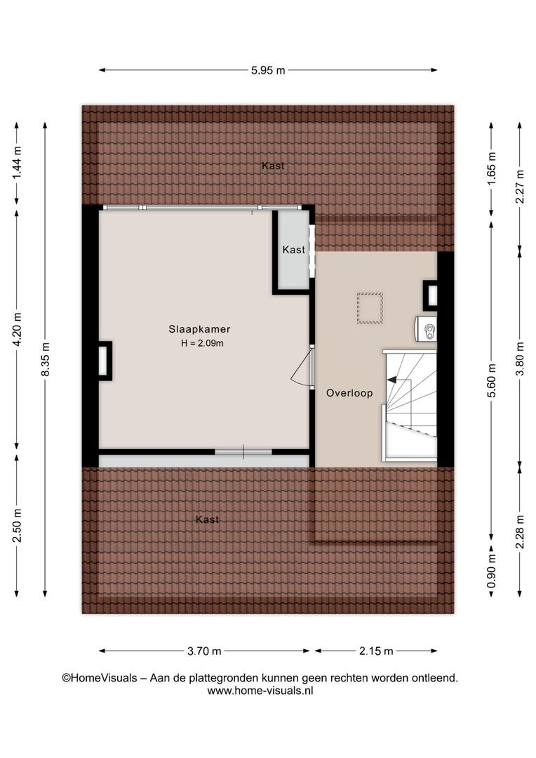
Tweede verdieping: overloop met meterkast. Slaapkamer voorzien van een dakkapel en een laminaatvloer.
Extra informatie:
- verwarmen geschiedt middels radiatoren;
- woning heeft dakisolatie en gedeeltelijk muur- en glasisolatie;
- cv-ketel 2024;
- 2000 uitbouw bijkeuken en schuur.
Volledige omschrijving
Minder omschrijving
De woning staat op een perceel van 205 m² eigen grond en beschikt over een onderhoudsvriendelijke tuin met achterom. Dit maakt het buitenleven aangenaam, zonder dat er veel tijd nodig is voor tuinonderhoud.
De ligging in De Loo is bijzonder prettig. Het is een groene woonwijk met veel voorzieningen zoals scholen, sportverenigingen en winkels zich in de directe nabijheid bevinden. Coevorden is een stad met een rijke historie en een gezellig centrum. Er is een ruim aanbod aan winkels, horecagelegenheden en culturele voorzieningen. Daarnaast zijn uitvalswegen en het treinstation goed bereikbaar, wat zorgt voor een goede verbinding met omliggende plaatsen.
Deze woning biedt een fijne combinatie van ruimte, comfort en een aantrekkelijke woonomgeving.
INDELING:
Begane grond: hal/entree en toilet. Woonkamer voorzien van een laminaatvloer en erker. Halfopen keuken met inbouwapparatuur: inductiekookplaat met afzuigkap, oven, vaatwasser en koelkast. Bijkeuken.
Eerste verdieping: overloop met wasmachineaansluiting. Drie slaapkamer, allen voorzien van een laminaatvloer en waarvan één met toegang tot het balkon. Badkamer met douche en wastafel met meubel. Via vaste trap naar...
Tweede verdieping: overloop met meterkast. Slaapkamer voorzien van een dakkapel en een laminaatvloer.
Extra informatie:
- verwarmen geschiedt middels radiatoren;
- woning heeft dakisolatie en gedeeltelijk muur- en glasisolatie;
- cv-ketel 2024;
- 2000 uitbouw bijkeuken en schuur.
Interesse?
Plan een bezichtiging voor David Krammerstraat 119.
Bel ons op 0524-525252 of WhatsApp via +31 524-525252 voor direct contact. Of laat jouw gegevens achter en wij nemen zo snel mogelijk contact met jou op.






