Berend Slingenbergstraat 13, Coevorden
€ 450.000 k.k.

Jouw makelaar voor deze woning
| 0524-525252 | |
| [email protected] | |
| +31 524-525252 |
Interesse in deze woning?
Over deze woning
In een prettige en kindvriendelijke woonstraat aan de rand van Coevorden staat deze moderne vrijstaande woning uit 2007. De woning is uitstekend onderhouden, volledig geïsoleerd en voorzien van 10 zonnepanelen, wat samen resulteert in een energielabel A. Op de eerste verdieping bevinden zich drie comfortabele slaapkamers en een nette badkamer. De tweede verdieping biedt de mogelijkheid om eenvoudig een vierde slaapkamer te creëren, waardoor de woning ook voor een groter gezin geschikt is. Onder de carport is er voldoende ruimte voor het droog parkeren van een auto
De ruime woonkamer heeft een fijne lichtinval en openslaande deuren die direct toegang geven tot het zonnige terras. Hier geniet je in alle rust van de verzorgde tuin die rondom de woning ligt. De tuin biedt meerdere terrassen, een achterom en een houten tuinhuis voor extra bergruimte. De garage is omgebouwd tot een geïsoleerde bijkeuken en schuur.
De ligging is ideaal: rustig aan de rand van een kindvriendelijke woonwijk, met sportvelden en scholen op korte fietsafstand. Voor natuurliefhebbers is er op slechts twee kilometer een prachtig buitengebied waar je kunt wandelen en genieten van de landelijke fietsroutes die praktisch om de hoek beginnen.
INDELING:
Begane grond: hal/entree met toilet. Woonkamer met natuurstenen vloer en tuindeuren die toegang bieden naar het terras. Beneden verdieping is voorzien van vloerverwarming (behalve de bijkeuken).
Keuken voorzien van een inductiekookplaat met afzuigkap, combi-oven/magnetron, koelkast. Bijkeuken voorzien van Novilon, met wasmachineaansluiting, keukenblok met kraan (warm/koud water) en berging met deur naar de tuin.
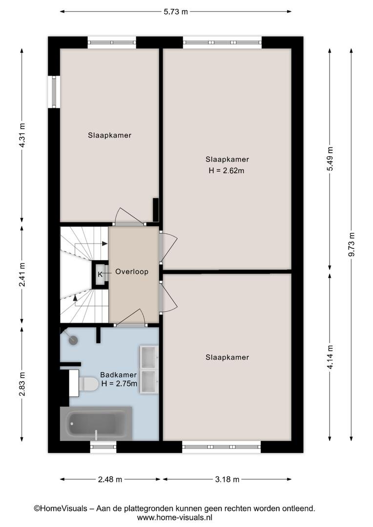
Eerst verdieping: overloop. Drie slaapkamers voorzien van vloerbedekking. Badkamer met ligbad, douche, dubbele wastafel met meubel en toilet. Via vaste trap naar...
Tweede verdieping: cv-ketel, warmte terugwin installatie en zonnecollectoren. De mogelijkheid om hier een vierde slaapkamer te maken.
Extra informatie:
- verwarmen geschiedt middels radiatoren en gedeeltelijk vloerverwarming;
- woning is volledig geïsoleerd;
- 10 zonnepanelen geplaatst in 2023;
- zonnecollectoren;
- cv-ketel Remeha 2018;
- energielabel A;
- aan de voorzijde van de woning heeft u vrij uitzicht over de speelweide;
- kindvriendelijke buurt.
Volledige omschrijving
Minder omschrijving
De ruime woonkamer heeft een fijne lichtinval en openslaande deuren die direct toegang geven tot het zonnige terras. Hier geniet je in alle rust van de verzorgde tuin die rondom de woning ligt. De tuin biedt meerdere terrassen, een achterom en een houten tuinhuis voor extra bergruimte. De garage is omgebouwd tot een geïsoleerde bijkeuken en schuur.
De ligging is ideaal: rustig aan de rand van een kindvriendelijke woonwijk, met sportvelden en scholen op korte fietsafstand. Voor natuurliefhebbers is er op slechts twee kilometer een prachtig buitengebied waar je kunt wandelen en genieten van de landelijke fietsroutes die praktisch om de hoek beginnen.
INDELING:
Begane grond: hal/entree met toilet. Woonkamer met natuurstenen vloer en tuindeuren die toegang bieden naar het terras. Beneden verdieping is voorzien van vloerverwarming (behalve de bijkeuken).
Keuken voorzien van een inductiekookplaat met afzuigkap, combi-oven/magnetron, koelkast. Bijkeuken voorzien van Novilon, met wasmachineaansluiting, keukenblok met kraan (warm/koud water) en berging met deur naar de tuin.
Eerst verdieping: overloop. Drie slaapkamers voorzien van vloerbedekking. Badkamer met ligbad, douche, dubbele wastafel met meubel en toilet. Via vaste trap naar...
Tweede verdieping: cv-ketel, warmte terugwin installatie en zonnecollectoren. De mogelijkheid om hier een vierde slaapkamer te maken.
Extra informatie:
- verwarmen geschiedt middels radiatoren en gedeeltelijk vloerverwarming;
- woning is volledig geïsoleerd;
- 10 zonnepanelen geplaatst in 2023;
- zonnecollectoren;
- cv-ketel Remeha 2018;
- energielabel A;
- aan de voorzijde van de woning heeft u vrij uitzicht over de speelweide;
- kindvriendelijke buurt.
Interesse?
Plan een bezichtiging voor Berend Slingenbergstraat 13.
Bel ons op 0524-525252 of WhatsApp via +31 524-525252 voor direct contact. Of laat jouw gegevens achter en wij nemen zo snel mogelijk contact met jou op.








